さいたま市大宮区三橋1丁目 中古一戸建て
-
2,699万円
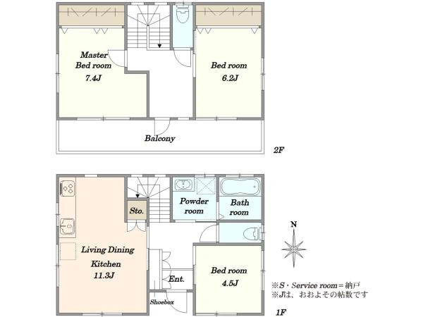
ローンシミュレーション - 間取り 3LDK
- 所在地 埼玉県さいたま市大宮区 三橋1丁目
- 建物面積 80.32m2
- 土地面積 100.08m2
-
交通
京浜東北・根岸線「大宮」駅 バス21分 (バス停 三橋公園通り) 徒歩5分
埼京線「大宮」駅 バス21分 (バス停 三橋公園通り) 徒歩5分 - 築年月 2013年4月
お問合せ
【2013年築オール電化住宅】
♢各居室が独立し、プライバシー性の保たれた間取り
間取り図
物件写真
0120-691-375
【通話無料・携帯もOK】
物件番号 RD770047
お問い合わせの際に、物件番号をお伝えいただくとスムーズです。
リフォーム内容
※2025年3月18日完了
◎新規交換
・浄水器付きシステムキッチン
・ユニットバス
・洗面化粧台
・トイレ
◎新規貼替
・クロス
・フローリング(LDK、一部洋室、廊下)
◎その他
・スイッチコンセント・一部建具の交換
・ハウスクリーニング実施
この物件のおすすめポイント
画面を横にしていただくと見やすくなります。*
*☆*:;;;:*☆*:;;;:*☆*:;;;:*☆*☆*:;;;:*☆**☆*:;;;:*☆
___________________________
☆☆大宮区三橋一丁目戸建☆☆
~2013年築オール電化住宅~
~2025年3月室内リフォーム完成済~
___________________________
*:**:**:**:*:**:**:**:*:**:**:**:*:**:**:**:*:**:**:**:
見学のご希望・ご質問・ご相談は、堀越までお気軽にご連絡下さい♪
【担当:堀越美月(ほりこし みつき)】
■フリーコール:0120-691-375
■E-mail:m-horikoshi@nomura-re.co.jp
*:**:**:**:*:**:**:**:*:**:**:**:*:**:**:**:*:**:**:**:
┌┐
└■ ~おすすめポイント~
━━━━━━━━━━━━━━━━
★2025年3月リフォーム完成済
…キッチン・バス・トイレの新規交換、フローリング、クロス貼り換えなどが
実施されております♪
★各居室が独立したプライバシー性の高い間取り
…すべてのお部屋が廊下で隔たれているため、
各居室のプライバシー性が高い点が魅力の物件です。
★オール電化住宅
…火を使わないため、安全性が高い点が魅力です。
災害時には、ガスよりも電気が早く復旧する点もオール電化のメリットとなります♪
★駐車場一台付き(車種制限あり)
ぜひ現地にてご確認くださいませ!
担当者コメント
大宮センター
堀越 美月 (ほりこし みつき)
ご覧いただきまして、誠にありがとうございます。
ご紹介したおすすめポイント以外にも、
実際にご覧いただくことで気づくことのできるたくさんの魅力がございます。
ぜひ、実際にお客様自身でご確認くださいませ。
購入にかかるご不安やご希望なども
お気軽に『堀越』までお申しつけください。
【本物件担当者】
野村の仲介+ 大宮センター 堀越 美月
【お問い合わせ】
フリーコール:0120-691-375
メール:m-horikoshi@nomura-re.co.jp
いつでもお気軽にご連絡くださいませ。お待ちしております。
特長・共用施設
物件の特徴の説明ハッシュタグをクリックすることで、同じハッシュタグを含む物件を検索できます。
立地・周辺環境について
| 立地・環境 | #南道路(南東・南西含む) #容積率100%以上 #本下水 #2沿線以上利用可 |
|---|
物件の概要・詳細
物件情報の見方| 価格 | 2,699万円 住宅ローンシミュレーション | ||
|---|---|---|---|
| 物件番号 | RD770047 | ||
| 所在地 | 埼玉県さいたま市大宮区 三橋1丁目 周辺地図を見る | ||
| 交通 |
京浜東北・根岸線「大宮」駅 バス21分 (バス停 三橋公園通り) 徒歩5分 埼京線「大宮」駅 バス21分 (バス停 三橋公園通り) 徒歩5分 高崎線「大宮」駅 バス21分 (バス停 三橋公園通り) 徒歩5分 湘南新宿ライン(宇都宮~逗子)「大宮」駅 バス21分 (バス停 三橋公園通り) 徒歩5分 |
||
| 間取り | 3LDK | ||
|
建物面積
|
80.32m2(24.29坪) 1階:43.06m2 2階:37.26m2 |
土地面積
| 100.08m2(30.27坪) |
|
構造
|
木造2階建て | ||
| 築年月 | 2013年4月 | 駐車場 | ― |
|
土地権利
|
所有権 |
地目
|
宅地 |
|
私道負担
|
13m2 |
セットバック
|
済 |
|
都市計画
|
市街化区域 |
用途地域
|
第二種中高層住居専用地域 |
|
建ぺい率
|
60% |
容積率
|
200% |
|
接道状況
|
南4m私道 接面2m | ||
| 設備 | 公営水道・本下水・オール電化 | ||
| 現況 | 空家 | 引 渡 | 即可(残代金お支払後) |
|
取引態様
|
仲介 |
国土法届出
|
不要 |
| 備 考 | 2025年3月18日リフォーム完了 キッチン・バス・トイレ・洗面化粧台 新規交換 クロス・床材貼替 |
||
| 更新日 | 2025年11月28日 | 次回更新予定日 | 2025年12月12日 |
お問合せ店舗
同じエリアの中古一戸建て
-
NEW 12/8
さいたま市大宮区上小町 中古戸建
7,180万円
埼京線「大宮」駅 徒歩14分
-
新価格 12/4
さいたま市大宮区大成町 中古戸建
4,780万円
新価格
京浜東北・根岸線「大宮」駅 徒歩14分
-
さいたま市大宮区三橋4丁目 戸建
3,450万円
京浜東北・根岸線「大宮」駅 バス19分 (平常時17分) (バス停 側ヶ谷戸) 徒歩3分
-
さいたま市大宮区大成町3丁目 中古一戸建て
4,180万円
埼玉新都市交通「鉄道博物館(大成)」駅 徒歩12分
-
さいたま市大宮区北袋町2丁目 戸建
4,980万円
京浜東北・根岸線「さいたま新都心」駅 徒歩13分
同じエリアの新築一戸建て
-
NEW 12/8
さいたま市大宮区櫛引町1丁目 新築一戸建て
5,780万円
京浜東北・根岸線「大宮」駅 徒歩22分
3LDK+S / 土地 96.08m2
-
新価格 12/3
さいたま市大宮区堀の内町1丁目 新築一戸建て
4,450万円
新価格
東北本線「大宮」駅 徒歩22分
4LDK / 土地 75.07m2
-
さいたま市大宮区三橋4丁目 新築一戸建て
4,999万円
京浜東北・根岸線「大宮」駅 徒歩35分
4LDK / 土地 168.07m2
-
さいたま市大宮区櫛引町1丁目 新築一戸建て
5,880万円
京浜東北・根岸線「大宮」駅 徒歩22分
3LDK+S / 土地 96.83m2
-
さいたま市大宮区上小町 新築一戸建て
6,499万円
東北本線「大宮」駅 徒歩20分
4LDK / 土地 84.3m2
本掲載情報と現況に差異がある場合、現況を優先します。掲載物件は売却済あるいは売出中止となる場合もあります。掲載写真やパース(絵)、または間取図に描かれている家具や車などは、価格に含まれておりません。予めご了承ください。周辺施設や周辺環境の写真は、過去に撮影したものをそのまま利用している場合があり、名称・外観・背景等、実際のものとは異なる場合がございます。
仲介物件には所定の仲介手数料(消費税等相当額を含みます)が必要です。
同じ地域・沿線・駅の中古一戸建てを検索する
京浜東北・根岸線の中古一戸建てを検索する
埼玉県さいたま市大宮区中古一戸建て売却・査定
売却もお任せください
ご所有不動産の売却をご検討なら、まずは無料査定から
投資用・事業用不動産サイト ノムコム・プロ

