川崎市中原区上丸子天神町 戸建て
-
7,380万円
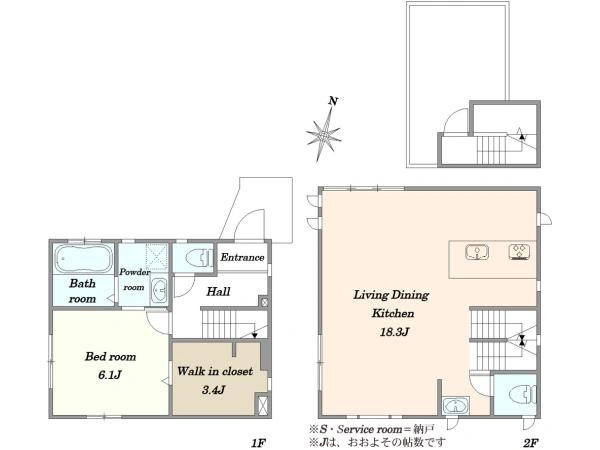
ローンシミュレーション - 間取り 1LDK
- 所在地 神奈川県川崎市中原区 上丸子天神町
- 建物面積 73.12m2
- 土地面積 62.59m2
-
交通
東急東横線「新丸子」駅 徒歩9分
東急東横線「武蔵小杉」駅 徒歩14分 - 築年月 2008年10月
お問合せ
閑静な住宅街に立地、2沿線利用可能でアクセス良好。耐震・耐火・耐久性に優れたストックヘーベルハウス。
間取り図
0120-981-105
【通話無料・携帯もOK】
物件番号 RB670251
お問い合わせの際に、物件番号をお伝えいただくとスムーズです。
この物件のおすすめポイント
【立地・環境】
川崎市中原区上丸子天神町の閑静な住宅街に位置。
東急東横線・目黒線「新丸子」駅 徒歩9分、JR・東急各線「武蔵小杉」駅 徒歩14分と、2駅・複数路線利用可能で通勤・通学に便利。
周辺にはスーパー・コンビニ・病院・公園・保育園・小中学校が徒歩圏内に揃い、生活利便性が高い。
【建物・仕様】
旭化成ホームズ施工のストックヘーベルハウスで、耐震・耐火・耐久性に優れた安心の構造。
2008年築、軽量鉄骨造・陸屋根2階建て。
延床面積73.12m2、1LDK+WICのゆとりある間取り。
LDKは15帖以上、床暖房付きで快適な居住空間。
屋上・天窓付きで開放感あり。
【その他】
駐車場あり(車種による制限あり)。
北側・西側の両面接道で開放感あり。
各種法令制限(準防火地域、高度地区、景観法など)にも適合。
60年無料点検システム・安心のアフターサービス付き。
担当者コメント
武蔵小杉センター
福本 直樹 (ふくもと なおき)
特長・共用施設
物件の特徴の説明ハッシュタグをクリックすることで、同じハッシュタグを含む物件を検索できます。
物件について
| 部屋 | #フローリング |
|---|---|
| 収納 | #ウォークインクローゼット |
| キッチン | #カウンターキッチン |
| 浴室・トイレ | #浴室に窓付き |
| 設備 | #都市ガス |
建物について
| 構造 | #注文住宅・ハウスメーカー施工 |
|---|---|
| 駐車場 | #ビルトインガレージ |
立地・周辺環境について
| 立地・環境 | #角地 #南道路(南東・南西含む) #本下水 |
|---|
物件の概要・詳細
物件情報の見方| 価格 | 7,380万円 住宅ローンシミュレーション | ||
|---|---|---|---|
| 物件番号 | RB670251 | ||
| 所在地 | 神奈川県川崎市中原区 上丸子天神町 周辺地図を見る | ||
| 交通 |
東急東横線「新丸子」駅 徒歩9分 東急東横線「武蔵小杉」駅 徒歩14分 |
||
| 間取り | 1LDK | ||
|
建物面積
|
73.12m2(22.11坪) |
土地面積
| 62.59m2(18.93坪)(公簿) |
|
構造
|
軽量鉄骨造2階建て | ||
| 築年月 | 2008年10月 | 駐車場 | あり |
|
土地権利
|
所有権 |
地目
|
宅地 |
|
私道負担
|
なし |
セットバック
|
1.26m2 |
|
都市計画
|
市街化区域 |
用途地域
|
第一種中高層住居専用地域 |
|
建ぺい率
|
60%・160% |
容積率
|
― |
|
接道状況
|
北4m公道 接面6.3m・南西4m私道 接面6.6m | ||
| 設備 | 公営水道・本下水・都市ガス | ||
| 現況 | 居住中 | 引 渡 | 相談 |
|
取引態様
|
仲介 |
国土法届出
|
不要 |
| 備 考 | ― | ||
| 更新日 | 2026年4月2日 | 次回更新予定日 | 2026年4月16日 |
お問合せ店舗
同じエリアの中古一戸建て
-
新価格 3/30
上丸子八幡町 賃貸併用住宅
9,980万円
新価格
東急東横線「新丸子」駅 徒歩5分
-
中原区井田3丁目 中古戸建
6,450万円
東急東横線「日吉」駅 徒歩21分
-
中原区井田中ノ町 中古戸建
5,299万円
東急東横線「元住吉」駅 徒歩14分
-
中原区井田三舞町 中古戸建
2億5,800万円
東急東横線「元住吉」駅 徒歩14分
-
中原区丸子通1丁目 戸建て
9,980万円
東急東横線「新丸子」駅 徒歩3分
同じエリアの新築一戸建て
-
新価格 4/2
川崎市中原区苅宿 新築戸建1号棟
6,499万円
新価格
南武線「平間」駅 徒歩13分
2LDK+S / 土地 54.17m2
-
川崎市中原区新城5丁目新築戸建 2号棟
9,580万円
南武線「武蔵新城」駅 徒歩3分
2LDK+S / 土地 55.69m2
-
川崎市中原区新城5丁目新築戸建 3号棟
8,880万円
南武線「武蔵新城」駅 徒歩3分
2LDK+S / 土地 55.68m2
-
中原区上平間 新築戸建 B号棟/全2棟
6,890万円
南武線「平間」駅 徒歩8分
3LDK+S / 土地 66.79m2
-
中原区上平間 新築戸建 A号棟/全2棟
6,590万円
南武線「平間」駅 徒歩8分
3LDK+S / 土地 58.26m2
本掲載情報と現況に差異がある場合、現況を優先します。掲載物件は売却済あるいは売出中止となる場合もあります。掲載写真やパース(絵)、または間取図に描かれている家具や車などは、価格に含まれておりません。予めご了承ください。周辺施設や周辺環境の写真は、過去に撮影したものをそのまま利用している場合があり、名称・外観・背景等、実際のものとは異なる場合がございます。
仲介物件には所定の仲介手数料(消費税等相当額を含みます)が必要です。
売却もお任せください
ご所有不動産の売却をご検討なら、まずは無料査定から
投資用・事業用不動産サイト ノムコム・プロ

