鵠沼海岸3丁目 新築戸建 NEW 4/3
-
7,790万円
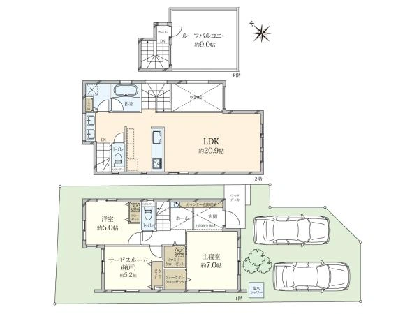
ローンシミュレーション - 間取り 2LDK+S+ルーフバルコニー
- 所在地 神奈川県藤沢市 鵠沼海岸3丁目
- 建物面積 97.5m2
- 土地面積 120.09m2
- 交通 小田急江ノ島線「鵠沼海岸」駅 徒歩5分
- 築年月 2026年6月予定(新築)
お問合せ
◇天井高約3m×約20.9帖の開放的なリビング◇ウッドデッキ付◇カースペース2台
◇富士山を望む約9帖のルーフバルコニー(コンセント・水栓付)
間取り図
0120-182-238
【通話無料・携帯もOK】
物件番号 R6070615
お問い合わせの際に、物件番号をお伝えいただくとスムーズです。
この物件のおすすめポイント
<鵠沼海岸3丁目 新築戸建>
----------------------------★:*:。★.:*:・’★*:
┏┓ アクセス
┗◆━━━━━━━━━━━━━━━━
小田急江ノ島線『鵠沼海岸』駅 徒歩5分
┏┓ おすすめポイント
┗◆━━━━━━━━━━━━━━━━
◇天井高約3m×約20.9帖の開放的なリビング
◇富士山を望む約9帖のルーフバルコニー(コンセント・水栓付)
◇吹き抜けのある開放的な玄関
◇ウッドデッキ付
◇国の重要文化財にも採用されている制震装置『マモリー』搭載
◇カースペース2台
◇ウォークインクローゼット・床下収納
◇2ボウル洗面化粧台
◇タッチレス水栓・食器洗い乾燥機・ガス衣類乾燥機ガス栓
◇電動シャッター
◇お庭に温水シャワーが付いてます
◇・.。*†*。.・◇・.。*†*。.・◇・.。*†*。.・◇
┏━━━━━━━━━━━━━━━━━━━┓
┃ 弊 社 サ ー ビ ス の ご 案 内 ! ┃
┗━━━━━━━━━━━━━━━━━━━┛
◆◇◆◇◆◇◆◇◆◇◆◇◆◇◆◇◆◇◆◇◆
┏━┓┏━┓
┃田┃┃田┃ ご購入者様限定サービス
┃田┃┃田┃ ≪住宅購入サポート≫
┃田┃┃田┃ ────────────────
┃田┃┃田┃
┗━┻┻━┻━━━━━━━━━━━━━━━
◆◇◆◇◆◇◆◇◆◇◆◇◆◇◆◇◆◇◆◇◆
┏━┓
┃1 ┃住宅購入サポート
┗━┻━━━━━━━━━━━━━━━━━━━
「野村の仲介+」で住まいを買うと・・・
次の7つのサービスから1つをプレセント!
・・・・・・・・・・・・・・・・・・・・・・
【A】安心と快適をサポート―「10年駆けつけ」
【B】住んだ後も安心を―「住宅設備チェック」
【C】お住まいを美しく―「選べる住まい
クリーニングまたはハウスコーティング」
【D】毎日の生活に安心を―「セコム・
ホームセキュリティ」
【E】新居でお祝いを―
「三越伊勢丹ホームパーティーギフト」
【F】気になる箇所を補修―
「ポイントリペア」
【G】何かと忙しいお引越し前後をサポート―
「荷づくり・荷ほどきサービス」
・・・・・・・・・・・・・・・・・・・・・・
詳細はこちら
⇒ http://www.nomu.com/plus/buy_support/
┏┓お買換えの場合もスムーズにご購入頂けます!
┗□━━━━━━━━━━━━━━━━━━━━━
弊社では、買換保証・つなぎ融資制度を
ご用意しております!
お買換えの場合、ほとんどの方がご売却を先に行
い、売却が決まってから、購入場所を見つける流
れになります。
その為、多くの方は新居入居前に一度引越しを行
い、賃料を払う「仮住まい」が必要となります。
弊社の【買換保証】と【つなぎ融資】を
ご利用頂ければ、仮住まいやWローンにならずに
お買い換えをスムーズに進めることが可能です。
(先行購入が可能となります。)
「まだ自宅のローンは残っているけど買換えたい」
という方はお気軽にご相談下さい。
また、「売却額次第では・・・」とお考え中の方も
ご相談頂けますと幸いです。
【買換保証】
一定期間内に売却できなかった場合、あらかじめ
お約束した価格で当社が買い取ります。
「万が一、売れなかったらどうしよう」という
お客様の不安を解消します!
⇒ http://www.nomu.com/seller/assurance.html
【つなぎ融資制度】
ゆとりあるお買換えを実現するため、売却物件の
お引き渡しまでの間をサポートするサービスです。
⇒ http://www.nomu.com/seller/financing.html
┏┓資金計画のご相談受付中!!!
┗□━━━━━━━━━━━━━━━━━━━━━
「住宅ローンはいくら借りられるの?」
「月々の返済額をいくらにしたい!」、
「変動金利か固定金利のどちらが良いのだろう?」
資金計画で疑問や悩み等ございましたら、是非
ご相談下さいませ。
現在の金利情勢やお借入銀行の特徴からお客様に
合った住宅ローンの組み方をご提案いたします。
※本物件以外での資金計画のご相談も承ります。
お気軽にご相談下さいませ。
《弊社ご紹介先銀行一覧》
三菱UFJ銀行・三井住友信託銀行・みずほ銀行
三井住友銀行・各地方銀行・フラット35利用銀行
各ネット銀行等
担当者コメント
藤沢センター
小山 哲汰 (こやま てつた)
誠にありがとうございます。
当物件を担当しております、
小山 哲汰(こやま てつた)と申します。
ご見学のご希望、物件に関するご質問など
ございましたらお気軽にお問い合わせください。
ご連絡を心よりお待ちしております。
◇お問い合わせ先◇
野村の仲介+(PLUS) 藤沢センター
小山 哲汰(こやま てつた)
MAIL:t4-koyama@nomura-re.co.jp
TEL:070-4803-7534
特長・共用施設
物件の特徴の説明ハッシュタグをクリックすることで、同じハッシュタグを含む物件を検索できます。
物件について
| 位置 | #南東向き |
|---|---|
| 部屋 | #3面採光 |
| 収納 | #ウォークインクローゼット #床下収納 #全居室収納 |
| キッチン | #カウンターキッチン #食器洗浄機 |
| 浴室・トイレ | #浴室に窓付き #浴室乾燥機 |
| バルコニー | #バルコニー・屋上に水栓あり |
| 設備 | #都市ガス |
建物について
| 駐車場 | #駐車場2台以上 |
|---|
立地・周辺環境について
| 立地・環境 | #南道路(南東・南西含む) #低層住居専用地域 #本下水 #駅徒歩5分以内 #コンビニまで徒歩3分以内 #海まで2km以内 #陽当り良好 |
|---|
物件の概要・詳細
物件情報の見方| 価格 | 7,790万円 住宅ローンシミュレーション | ||
|---|---|---|---|
| 物件番号 | R6070615 | ||
| 所在地 | 神奈川県藤沢市 鵠沼海岸3丁目 周辺地図を見る | ||
| 交通 | 小田急江ノ島線「鵠沼海岸」駅 徒歩5分 | ||
| 間取り | 2LDK+S+ルーフバルコニー | ||
|
建物面積
|
97.5m2(29.49坪) |
土地面積
| 120.09m2(36.32坪) |
|
構造
|
木造2階建て | ||
| 築年月 | 2026年6月予定(新築) | 駐車場 | あり |
|
土地権利
|
所有権 |
地目
|
宅地 |
|
私道負担
|
なし |
セットバック
|
― |
|
都市計画
|
市街化区域 |
用途地域
|
第一種低層住居専用地域 |
|
建ぺい率
|
50% |
容積率
|
― |
|
接道状況
|
南東4.5m公道 | ||
| 設備 | 公営水道・本下水・都市ガス | ||
| 現況 | 建築中 | 引 渡 | 2026年6月下旬(入居予定) |
|
取引態様
|
仲介 |
国土法届出
|
不要 |
| 備 考 | ●建築確認番号 / 第2025確認建築静建住ま11461号 備蓄倉庫面積:1.86m2は、建物面設計:97.50m2に含まれる。 |
||
| 更新日 | 2026年4月6日 | 次回更新予定日 | 2026年4月20日 |
お問合せ店舗
同じエリアの新築一戸建て
-
新価格 4/8
藤沢市辻堂1丁目 新築一戸建て
7,880万円
新価格
東海道本線(東京~熱海)「辻堂」駅 徒歩7分
-
新価格 4/8
藤沢市辻堂1丁目 新築一戸建て
7,680万円
新価格
東海道本線(東京~熱海)「辻堂」駅 徒歩7分
-
新価格 4/7
藤沢市片瀬4丁目 新築一戸建て
6,998万円
新価格
江ノ島電鉄「湘南海岸公園」駅 徒歩7分
-
NEW 4/5
藤沢市片瀬山1丁目新築戸建 1号棟
8,780万円
江ノ島電鉄「柳小路」駅 徒歩13分
-
NEW 4/5
藤沢市片瀬山1丁目新築戸建 2号棟
8,980万円
江ノ島電鉄「柳小路」駅 徒歩13分
同じエリアの中古一戸建て
-
NEW 4/3
藤沢市高倉 中古一戸建て
4,680万円
小田急江ノ島線「長後」駅 徒歩4分
3LDK+S / 土地 99.06m2
-
藤沢市石川5丁目 一戸建
3,049万円
小田急江ノ島線「湘南台」駅 バス11分 (バス停 和泉橋) 徒歩5分
4LDK / 土地 106.14m2
-
藤沢市辻堂東海岸2丁目戸建て
6,699万円
東海道本線(東京~熱海)「辻堂」駅 バス8分 (バス停 辻堂東海岸) 徒歩7分
2LDK / 土地 120.03m2
-
藤沢市亀井野 中古戸建
4,650万円
小田急江ノ島線「湘南台」駅 徒歩15分
4LDK / 土地 127.87m2
-
藤沢市鵠沼松が岡1丁目中古戸建て
9億2,800万円
江ノ島電鉄「鵠沼」駅 徒歩3分
5LDK / 土地 801.59m2
本掲載情報と現況に差異がある場合、現況を優先します。掲載物件は売却済あるいは売出中止となる場合もあります。掲載写真やパース(絵)、または間取図に描かれている家具や車などは、価格に含まれておりません。予めご了承ください。周辺施設や周辺環境の写真は、過去に撮影したものをそのまま利用している場合があり、名称・外観・背景等、実際のものとは異なる場合がございます。
仲介物件には所定の仲介手数料(消費税等相当額を含みます)が必要です。
売却もお任せください
ご所有不動産の売却をご検討なら、まずは無料査定から
投資用・事業用不動産サイト ノムコム・プロ

