中古一戸建て
さいたま市大宮区大成町3丁目 中古一戸建て
-
4,180万円
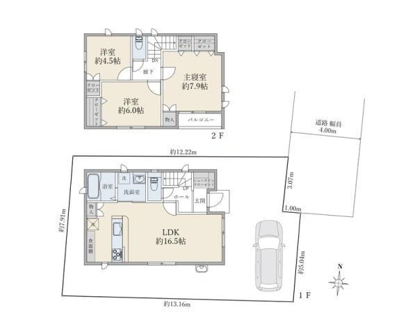
ローンシミュレーション - 間取り 3LDK
- 所在地 埼玉県さいたま市大宮区 大成町3丁目
- 建物面積 84.67m2
- 土地面積 102.42m2
- 交通 埼玉新都市交通「鉄道博物館(大成)」駅 徒歩12分
- 築年月 2021年3月
お問合せ
間取り図
0120-691-375
【通話無料・携帯もOK】
物件番号 KD770134
お問い合わせの際に、物件番号をお伝えいただくとスムーズです。
特長・共用施設
物件の特徴の説明ハッシュタグをクリックすることで、同じハッシュタグを含む物件を検索できます。
物件の概要・詳細
物件情報の見方| 価格 | 4,180万円 住宅ローンシミュレーション | ||
|---|---|---|---|
| 物件番号 | KD770134 | ||
| 所在地 | 埼玉県さいたま市大宮区 大成町3丁目 周辺地図を見る | ||
| 交通 | 埼玉新都市交通「鉄道博物館(大成)」駅 徒歩12分 | ||
| 間取り | 3LDK | ||
|
建物面積
|
84.67m2(25.61坪) |
土地面積
| 102.42m2(30.98坪)(実測) |
|
構造
|
木造2階建て | ||
| 築年月 | 2021年3月 | 駐車場 | なし |
|
土地権利
|
所有権 |
地目
|
宅地 |
|
私道負担
|
101m2 |
セットバック
|
― |
|
都市計画
|
市街化区域 |
用途地域
|
第一種住居地域 |
|
建ぺい率
|
― |
容積率
|
― |
|
接道状況
|
北東4m私道 接面4m位置指定 | ||
| 設備 | ― | ||
| 現況 | 居住中 | 引 渡 | 相談 |
|
取引態様
|
仲介 |
国土法届出
|
― |
| 備 考 | ― | ||
| 更新日 | 2026年3月9日 | 次回更新予定日 | 2026年3月23日 |
お問合せ店舗
同じエリアの中古一戸建て
-
NEW 3/2
さいたま市大宮区三橋4丁目 戸建
3,380万円
京浜東北・根岸線「大宮」駅 バス19分 (平常時17分) (バス停 側ヶ谷戸) 徒歩3分
-
さいたま市大宮区大成町 中古戸建
4,680万円
京浜東北・根岸線「大宮」駅 徒歩14分
-
さいたま市大宮区三橋1丁目 中古一戸建て
2,399万円
京浜東北・根岸線「大宮」駅 バス21分 (バス停 三橋公園通り) 徒歩5分
-
さいたま市大宮区天沼町2丁目 戸建
3,780万円
京浜東北・根岸線「大宮」駅 徒歩18分
-
さいたま市大宮区北袋町2丁目 戸建
4,980万円
京浜東北・根岸線「さいたま新都心」駅 徒歩13分
同じエリアの新築一戸建て
-
さいたま市大宮区大成町3丁目 新築一戸建て
6,899万円
埼京線「大宮」駅 徒歩21分
3LDK+S / 土地 91.78m2
-
さいたま市大宮区三橋4丁目 新築一戸建て
4,999万円
京浜東北・根岸線「大宮」駅 徒歩35分
4LDK / 土地 168.07m2
-
さいたま市大宮区上小町 新築一戸建て
6,499万円
東北本線「大宮」駅 徒歩20分
4LDK / 土地 84.3m2
-
さいたま市大宮区上小町 新築一戸建て
5,599万円
東北本線「大宮」駅 徒歩20分
4LDK / 土地 81.57m2
本掲載情報と現況に差異がある場合、現況を優先します。掲載物件は売却済あるいは売出中止となる場合もあります。掲載写真やパース(絵)、または間取図に描かれている家具や車などは、価格に含まれておりません。予めご了承ください。周辺施設や周辺環境の写真は、過去に撮影したものをそのまま利用している場合があり、名称・外観・背景等、実際のものとは異なる場合がございます。
仲介物件には所定の仲介手数料(消費税等相当額を含みます)が必要です。
売却もお任せください
ご所有不動産の売却をご検討なら、まずは無料査定から
投資用・事業用不動産サイト ノムコム・プロ

