中古一戸建て
神戸市中央区下山手通8丁目 中古戸建
お問合せ
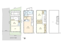
※写真の説明・詳細コメントについては、「物件TOP」タブの写真をご確認ください
お問合せ店舗
同じエリアの一戸建て
-
新価格 1/24
新築一戸建て神戸市中央区熊内町八丁目 2号棟 新築戸建 4,480万円 新価格 神戸市営地下鉄西神・山手線「新神戸」駅 徒歩10分 -
NEW 1/23
中古一戸建て神戸市中央区北野町四丁目 中古戸建 6,700万円 阪急神戸線「神戸三宮」駅 徒歩12分 -
中古一戸建て中央区中山手通7丁目 1億3,800万円 神戸市営地下鉄西神・山手線「県庁前」駅 徒歩11分 -
中古一戸建て神戸市中央区生田町4丁目中古戸建 4,490万円 東海道本線(米原~神戸)「三ノ宮」駅 徒歩10分 -
中古一戸建て神戸市中央区野崎通六丁目 3号棟 4,980万円 阪急神戸線「春日野道」駅 徒歩9分
同じエリアの新築一戸建て
-
新価格 1/24
神戸市中央区熊内町八丁目 2号棟 新築戸建
4,480万円
新価格
神戸市営地下鉄西神・山手線「新神戸」駅 徒歩10分
3LDK / 土地 100.59m2
本掲載情報と現況に差異がある場合、現況を優先します。掲載物件は売却済あるいは売出中止となる場合もあります。掲載写真やパース(絵)、または間取図に描かれている家具や車などは、価格に含まれておりません。予めご了承ください。周辺施設や周辺環境の写真は、過去に撮影したものをそのまま利用している場合があり、名称・外観・背景等、実際のものとは異なる場合がございます。
仲介物件には所定の仲介手数料(消費税等相当額を含みます)が必要です。
投資用・事業用不動産サイト ノムコム・プロ
