大和市上草柳8丁目 中古戸建 NEW 10/02
お問合せ
◆2022年築 土地118.67m2/建物86.94m2ゆとりの取れた2階建て住宅◆駐車場2台分~片方はゆとりの取れた駐車スペースにつきワンボックスカー等も駐車可能です~◆約2帖の納戸あり
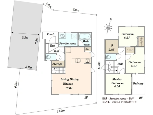
間取り図

- 3Dウォークスルー動画
※動画内に掲載の間取り図は現地で撮影した写真を基に作成しており、現状の間取り図とは相違している場合がございます。
動画内の家具・調度品等は販売価格に含まれておりません。
動画内の測定モードで表示される距離はおおよその数値です。正確には現地でご確認いただきますよう、お願いいたします。
ご利用のブラウザによっては、正しく動作しない場合がございます。ご利用環境について
0120-803-917
(通話無料・携帯もOK)
物件番号 FE1BX002
お問い合わせの際に、物件番号をお伝えいただくとスムーズです。
あんしん建物補修サービス 対象物件
建物の検査・補修済の状態で購入でき、お引き渡しから最長5年間、建物に関するアフターサポートが付くから安心。
詳しくはこちらあんしん設備補修サービス 対象物件
住宅設備の検査・補修済の状態で購入でき、お引き渡しから最長5年のアフターサポートが付くから安心。
詳しくはこちらこの物件のおすすめポイント
 ̄ ̄ ̄ ̄ ̄ ̄ ̄ ̄ ̄ ̄ ̄ ̄ ̄ ̄ ̄ ̄ ̄ ̄ ̄ ̄ ̄ ̄ ̄
【 土地面積:118.67m2 / 建物面積:86.94m2 】
【 3SLDK+納戸 / 駐車場2台分あり 】
【 2022年築 / 間取り等自由設計の半注文住宅 】
【 約2.0帖の納戸 / 階段下収納 】
_______________________
*∴*∴*∴*∴*∴*∴*∴*∴*∴*∴*∴*∴*∴*∴*∴*∴
┏┓交通アクセス
┗□━━━━━━━━━━━━━━━━━━━━━
■小田急江ノ島線『鶴間』駅 徒歩15分
⇒駅から平坦アクセス
■相鉄本線『大和』駅 バス乗車13分
⇒バス停「笹山入口」まで徒歩5分
┏┓土地について
┗□━━━━━━━━━━━━━━━━━━━━━
◇土地面積:118.67m2(約35.74坪)
……………………………………………………………
◇道路面との高低差がない綺麗な整形地
⇒将来的な建て替えもしやすいお土地です
……………………………………………………………
◇広々とした駐車場2台分あり
⇒お車に加え、自転車等も置いて頂けます。
建物の両サイドにそれぞれ駐車場があり、
片方はワンボックスカー等大きめのお車も
駐車可能なゆとりのあるスペースです。
……………………………………………………………
┏┓建物について
┗□━━━━━━━━━━━━━━━━━━━━━
◇建物面積:86.94m2(約26.29坪)
⇒2022年築の築浅戸建て
⇒間取り等自由設計の半注文住宅
……………………………………………………………
◇LDK、水回りは1階に集約
⇒主な生活スペースであるLDK・洗面所・浴室が
全て1階に集約された効率良い生活同線の間取り。
……………………………………………………………
◇半注文住宅ならではのゆとりのある洗面所・浴室
⇒建売住宅では小さくなりがちな洗面所・浴室は
半注文だからこその広さが確保されています。
⇒約3.0帖の洗面所:5段の可動棚付き。
⇒1616サイズのユニットバス。
……………………………………………………………
◇食品の収納が可能なパントリー
⇒高さがあり、5段の可動棚になっています。
食品収納用の棚を買う必要がなく、利便性◎
……………………………………………………………
◇階段入口にスライドドア付き
⇒小さなお子様が階段に入ってしまうのを防げます。
⇒冬場はリビングから暖気が逃げづらいです。
……………………………………………………………
◇安心のTVモニターインターホン付き
⇒来客した人が見える安心のセキュリティです♪
……………………………………………………………
◇約3.0帖のバルコニー
⇒2階南東側に設置のバルコニーは、
前面大きな建物がなく陽当たり良好です。
……………………………………………………………
◇各居室5.0帖以上の洋室
⇒各洋室5.0帖以上の広さがあります。
⇒主寝室は柱の出っ張り等がなく、
家具のレイアウトが自由自在です。
……………………………………………………………
◇約2.0帖の納戸
⇒2階に約2.0帖、ハンガーをかけられるポール付の
納戸があります。
⇒季節物のお洋服や、かさばる荷物等、
1箇所にまとめて収納が可能です♪
……………………………………………………………
┏┓キッチンについて
┗□━━━━━━━━━━━━━━━━━━━━━
◇会話がはずむ対面式カウンターキッチン
⇒お料理中にも家族との会話やTVが楽しめます
⇒広々としたワークスペースも魅力です
……………………………………………………………
◇キッチンには食洗機付き
⇒あると便利な食洗機はご来客時に便利です
水切り籠としてもご利用できます
……………………………………………………………
◇玄関からの距離が短い間取り設計
⇒玄関からキッチンまでの距離が短く、
階段を上る必要もないため、
お買い物後の同線がスムーズです。
……………………………………………………………
◇窓付きのキッチン
⇒キッチンにも窓がついており風通しも良好です♪
……………………………………………………………
担当者コメント


旗の台センター
佐口 菜緒 (さぐち なお)
┗□━━━━━━━━━━━━━━━
物件に関するご質問・ご見学をご希望のお客様は
担当「佐口(さぐち)」までお気軽にお問い合わせください。
〈お電話でのお問い合わせ〉
◇旗の台センター :0120-803-917
〈メールでのお問い合わせ〉
◇担当者直通メール :n-saguchi@nomura-re.co.jp
「室内状況」「周辺環境」「不動産ご購入の流れ」
「住宅ローン」「購入にかかる諸費用」など
いつでもお気軽にご連絡くださいませ。
お会いさせて頂きました際には、不動産のご購入について
お客様のご希望条件や資金計画等をご一緒に立てさせて頂き、
よりスムーズなお住み替えをご提案し、ご一緒に物件探しの
お手伝いをさせて頂きたく存じます。
特長・共用施設
物件の特徴の説明ハッシュタグをクリックすることで、同じハッシュタグを含む物件を検索できます。
物件について
部屋 | #全居室フローリング |
---|---|
収納 | #納戸 |
キッチン | #カウンターキッチン #食器洗浄機 #システムキッチン #パントリー(食器・食品の収納庫) |
浴室・トイレ | #浴室乾燥機 #追いだき機能 #温水洗浄便座 #シャワー付洗面化粧台 |
設備 | #都市ガス |
建物について
セキュリティ | #TVモニタ付きインターフォン |
---|---|
駐車場 | #駐車場2台以上 |
その他 | #あんしん建物補修 #あんしん設備補修 #ホームクリーンアップ |
物件の概要・詳細
物件情報の見方価格 | 4,780万円 住宅ローンシミュレーション | ||
---|---|---|---|
物件番号 | FE1BX002 | ||
所在地 | 神奈川県大和市 上草柳8丁目 周辺地図を見る | ||
交通 |
小田急江ノ島線「鶴間」駅 徒歩15分 小田急江ノ島線「大和」駅 バス13分 (バス停 笹山入口) 徒歩5分 |
||
間取り | 3LDK+納戸 | ||
建物面積
![]() |
86.94m2(26.29坪) 1階:45.54m2 2階:41.4m2 |
土地面積
![]() | 118.67m2(35.89坪)(公簿) |
構造
![]() |
木造2階建て | ||
築年月 | 2022年11月 | 駐車場 | あり |
土地権利
![]() |
所有権 |
地目
![]() |
宅地 |
私道負担
![]() |
105m2×1 / 4 |
セットバック
![]() |
― |
都市計画
![]() |
市街化区域 |
用途地域
![]() |
第一種低層住居専用地域 |
建ぺい率
![]() |
50% |
容積率
![]() |
100% |
接道状況
![]() |
北西4m私道 | ||
設備 | 公営水道・本下水・都市ガス | ||
現況 | 居住中 | 引 渡 | 相談 |
取引態様
![]() |
仲介 |
国土法届出
![]() |
不要 |
備 考 | ●都市計画法他制限 / 準防火地域 | ||
更新日 | 2025年10月2日 | 次回更新予定日 | 2025年10月16日 |
お問合せ店舗
同じエリアの中古一戸建て
-
大和市上草柳中古戸建 3,780万円 相鉄本線「相模大塚」駅 徒歩6分
-
大和市下鶴間 中古戸建 5,680万円 東急田園都市線「南町田グランベリーP」駅 徒歩19分
-
大和市下鶴間 戸建 3,280万円 東急田園都市線「つきみ野」駅 徒歩18分
-
大和市大和東1丁目 戸建て 4,280万円 小田急江ノ島線「大和」駅 徒歩7分
-
大和市福田5丁目 1,980万円 小田急江ノ島線「桜ヶ丘」駅 徒歩13分
同じエリアの新築一戸建て
-
新価格 09/30 大和市西鶴間2丁目 新築一戸建て 4,680万円 新価格 小田急江ノ島線「鶴間」駅 徒歩5分 2LDK+S / 土地 87.14m2
-
新価格 09/30 大和市西鶴間2丁目 新築一戸建て 4,380万円 新価格 小田急江ノ島線「鶴間」駅 徒歩5分 3LDK / 土地 72.76m2
-
NEW 09/29 大和市福田 新築戸建て 4,690万円 小田急江ノ島線「高座渋谷」駅 徒歩15分 4LDK / 土地 127.55m2
-
NEW 09/29 大和市南林間8丁目 新築戸建て C号棟 5,480万円 小田急江ノ島線「南林間」駅 徒歩14分 3LDK+S / 土地 111.61m2
-
NEW 09/29 大和市南林間8丁目 新築戸建て A号棟 5,380万円 小田急江ノ島線「南林間」駅 徒歩14分 2LDK+2S / 土地 111.81m2
本掲載情報と現況に差異がある場合、現況を優先します。掲載物件は売却済あるいは売出中止となる場合もあります。掲載写真やパース(絵)、または間取図に描かれている家具や車などは、価格に含まれておりません。予めご了承ください。周辺施設や周辺環境の写真は、過去に撮影したものをそのまま利用している場合があり、名称・外観・背景等、実際のものとは異なる場合がございます。
仲介物件には所定の仲介手数料(消費税等相当額を含みます)が必要です。
売却もお任せください
ご所有不動産の売却をご検討なら、まずは無料査定から