中古一戸建て
大阪市北区神山町 中古戸建 NEW 11/01
お問合せ
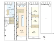
※写真の説明・詳細コメントについては、「物件TOP」タブの写真をご確認ください
お問合せ店舗
本掲載情報と現況に差異がある場合、現況を優先します。掲載物件は売却済あるいは売出中止となる場合もあります。掲載写真やパース(絵)、または間取図に描かれている家具や車などは、価格に含まれておりません。予めご了承ください。周辺施設や周辺環境の写真は、過去に撮影したものをそのまま利用している場合があり、名称・外観・背景等、実際のものとは異なる場合がございます。
仲介物件には所定の仲介手数料(消費税等相当額を含みます)が必要です。
大阪メトロ谷町線の中古一戸建てを検索する
大阪府大阪市北区中古一戸建て売却・査定
投資用・事業用不動産サイト ノムコム・プロ
