中古一戸建て
                            
                            
                            
                            
                            
                            
                            
                        
                        中野区若宮三丁目 戸建 NEW 10/31
- 
                    2,800万円 ローンシミュレーション
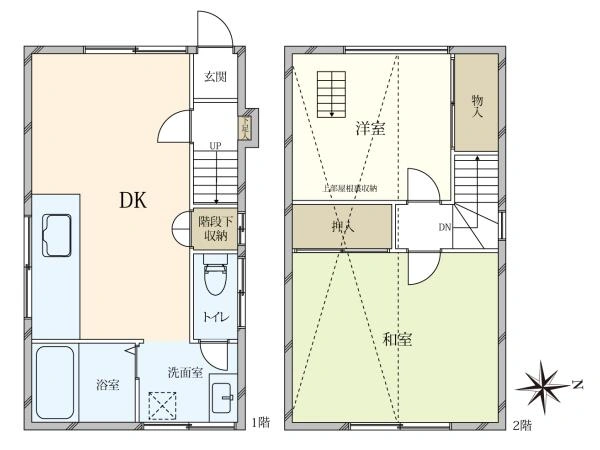
- 間取り 2DK
- 所在地 東京都中野区 若宮3丁目
- 建物面積 45.36m2
- 土地面積 30.33m2
- 交通 西武新宿線「都立家政」駅 徒歩5分
- 築年月 1990年10月
お問合せ
間取り図
0120-901-715
(通話無料・携帯もOK)
物件番号 FC8BX014
お問い合わせの際に、物件番号をお伝えいただくとスムーズです。
特長・共用施設
物件の特徴の説明ハッシュタグをクリックすることで、同じハッシュタグを含む物件を検索できます。
物件の概要・詳細
物件情報の見方| 価格 | 2,800万円 住宅ローンシミュレーション | ||
|---|---|---|---|
| 物件番号 | FC8BX014 | ||
| 所在地 | 東京都中野区 若宮3丁目 周辺地図を見る | ||
| 交通 | 西武新宿線「都立家政」駅 徒歩5分 | ||
| 間取り | 2DK | ||
| 建物面積   | 45.36m2(13.72坪)(公簿) 1階:22.68m2 2階:22.68m2 | 土地面積   | 30.33m2(9.17坪)(公簿) | 
| 構造   | 木造2階建て | ||
| 築年月 | 1990年10月 | 駐車場 | なし | 
| 土地権利   | 所有権 | 地目   | 宅地(現況:宅地) | 
| 私道負担   | 18.6m2×1 / 2 | セットバック   | ― | 
| 都市計画   | 市街化区域 | 用途地域   | 第一種低層住居専用地域 | 
| 建ぺい率   | 60% | 容積率   | 150% | 
| 接道状況   | ― | ||
| 設備 | 公営水道・本下水・都市ガス | ||
| 現況 | 空家 | 引 渡 | 相談 | 
| 取引態様   | 仲介 | 国土法届出   | 不要 | 
| 備 考 | ●都市計画法他制限 / 準防火地域、第1種高度地区 ※本物件は建築基準法の道路に接道していないため、再建築不可となります。 ※対象不動産は規定の建ぺい率をオーバーしています。 | ||
| 更新日 | 2025年10月31日 | 次回更新予定日 | 2025年11月14日 | 
お問合せ店舗
同じエリアの中古一戸建て
- 
                               NEW 10/30
                                  
                              
                              
                              中野区鷺宮5丁目 一戸建
                              
                                 6,790万円
                                 
								 
                              
                              西武新宿線「鷺ノ宮」駅 徒歩12分 NEW 10/30
                                  
                              
                              
                              中野区鷺宮5丁目 一戸建
                              
                                 6,790万円
                                 
								 
                              
                              西武新宿線「鷺ノ宮」駅 徒歩12分
- 
                               新価格 10/27
                              
                              
                              中野区東中野二丁目戸建
                              
                                 1億1,800万円
                                 
								 
								    新価格
								 
                              
                              中央・総武線「東中野」駅 徒歩3分 新価格 10/27
                              
                              
                              中野区東中野二丁目戸建
                              
                                 1億1,800万円
                                 
								 
								    新価格
								 
                              
                              中央・総武線「東中野」駅 徒歩3分
- 
                               NEW 10/26
                                  
                              
                              
                              中野区白鷺2丁目 中古戸建
                              
                                 7,380万円
                                 
								 
                              
                              西武新宿線「鷺ノ宮」駅 徒歩9分 NEW 10/26
                                  
                              
                              
                              中野区白鷺2丁目 中古戸建
                              
                                 7,380万円
                                 
								 
                              
                              西武新宿線「鷺ノ宮」駅 徒歩9分
- 
                               中野区上高田1丁目中古戸建
                              
                                 1億980万円
                                 
								 
                              
                              都営大江戸線「東中野」駅 徒歩11分 中野区上高田1丁目中古戸建
                              
                                 1億980万円
                                 
								 
                              
                              都営大江戸線「東中野」駅 徒歩11分
- 
                               中野区鷲宮1丁目中古戸建
                              
                                 1億8,800万円
                                 
								 
                              
                              西武新宿線「都立家政」駅 徒歩4分 中野区鷲宮1丁目中古戸建
                              
                                 1億8,800万円
                                 
								 
                              
                              西武新宿線「都立家政」駅 徒歩4分
同じエリアの新築一戸建て
- 
                               NEW 10/31
                                  
                              
                              
                              中野区上鷺宮5丁目中古戸建
                              
                                 4,000万円
                                 
								 
                              
                              
                              西武池袋・豊島線「富士見台」駅 徒歩11分
                              
                              4LDK / 土地 81.39m2 NEW 10/31
                                  
                              
                              
                              中野区上鷺宮5丁目中古戸建
                              
                                 4,000万円
                                 
								 
                              
                              
                              西武池袋・豊島線「富士見台」駅 徒歩11分
                              
                              4LDK / 土地 81.39m2
- 
                               新価格 10/30
                              
                              
                              中野区鷺宮5丁目 新築戸建
                              
                                 7,598万円
                                 
								 
								    新価格
								 
                              
                              
                              西武新宿線「鷺ノ宮」駅 徒歩12分
                              
                              1LDK / 土地 90.72m2 新価格 10/30
                              
                              
                              中野区鷺宮5丁目 新築戸建
                              
                                 7,598万円
                                 
								 
								    新価格
								 
                              
                              
                              西武新宿線「鷺ノ宮」駅 徒歩12分
                              
                              1LDK / 土地 90.72m2
- 
                               NEW 10/27
                                  
                              
                              
                              中野区中央4丁目 新築戸建
                              
                                 7,680万円
                                 
								 
                              
                              
                              東京メトロ丸ノ内線「新中野」駅 徒歩7分
                              
                              3LDK / 土地 41.45m2 NEW 10/27
                                  
                              
                              
                              中野区中央4丁目 新築戸建
                              
                                 7,680万円
                                 
								 
                              
                              
                              東京メトロ丸ノ内線「新中野」駅 徒歩7分
                              
                              3LDK / 土地 41.45m2
- 
                               新価格 10/24
                              
                              
                              中野区白鷺三丁目戸建 2号棟
                              
                                 9,199万円
                                 
								 
								    新価格
								 
                              
                              
                              西武新宿線「下井草」駅 徒歩10分
                              
                              2LDK+S / 土地 95.25m2 新価格 10/24
                              
                              
                              中野区白鷺三丁目戸建 2号棟
                              
                                 9,199万円
                                 
								 
								    新価格
								 
                              
                              
                              西武新宿線「下井草」駅 徒歩10分
                              
                              2LDK+S / 土地 95.25m2
- 
                               新価格 10/24
                              
                              
                              中野区白鷺3丁目戸建 1号棟
                              
                                 9,399万円
                                 
								 
								    新価格
								 
                              
                              
                              西武新宿線「下井草」駅 徒歩10分
                              
                              3LDK / 土地 93.31m2 新価格 10/24
                              
                              
                              中野区白鷺3丁目戸建 1号棟
                              
                                 9,399万円
                                 
								 
								    新価格
								 
                              
                              
                              西武新宿線「下井草」駅 徒歩10分
                              
                              3LDK / 土地 93.31m2
本掲載情報と現況に差異がある場合、現況を優先します。掲載物件は売却済あるいは売出中止となる場合もあります。掲載写真やパース(絵)、または間取図に描かれている家具や車などは、価格に含まれておりません。予めご了承ください。周辺施設や周辺環境の写真は、過去に撮影したものをそのまま利用している場合があり、名称・外観・背景等、実際のものとは異なる場合がございます。
            仲介物件には所定の仲介手数料(消費税等相当額を含みます)が必要です。
西武新宿線の中古一戸建てを検索する
東京都中野区中古一戸建て売却・査定
売却もお任せください
ご所有不動産の売却をご検討なら、まずは無料査定から
 投資用・事業用不動産サイト ノムコム・プロ
 投資用・事業用不動産サイト ノムコム・プロ
						 
                        
                        
                    
                     
                                                

 
  
  
  
 