中古一戸建て
あんしん建物補修
豊中市永楽荘一丁目 戸建
お問合せ
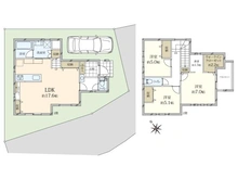
※写真の説明・詳細コメントについては、「物件TOP」タブの写真をご確認ください
お問合せ店舗
同じエリアの一戸建て
-
新価格 12/15
中古一戸建て豊中市南桜塚三丁目 中古戸建 6,980万円 新価格 阪急宝塚線「曽根」駅 徒歩12分 -
新築一戸建て豊中市桜の町五丁目 新築戸建 4,780万円 大阪モノレール線「少路」駅 徒歩12分 -
中古一戸建て豊中市勝部三丁目 中古戸建 3,099万円 阪急宝塚線「岡町」駅 徒歩15分 -
中古一戸建て大阪府豊中市宮山町三丁目 中古戸建 6,250万円 阪急箕面線「桜井」駅 徒歩15分 -
中古一戸建て豊中市小曽根四丁目 中古戸建 3,490万円 大阪メトロ御堂筋線「江坂」駅 徒歩18分
同じエリアの新築一戸建て
-
豊中市桜の町五丁目 新築戸建
4,780万円
大阪モノレール線「少路」駅 徒歩12分
3LDK / 土地 94.86m2
-
豊中市蛍池東町3丁目 新築戸建
5,490万円
阪急宝塚線「蛍池」駅 徒歩5分
3LDK / 土地 179.08m2
-
豊中市本町九丁目 新築戸建 1号棟
5,380万円
阪急宝塚線「豊中」駅 徒歩12分
3LDK / 土地 86.13m2
-
豊中市本町九丁目 新築戸建 2号棟
5,280万円
阪急宝塚線「豊中」駅 徒歩12分
2LDK+S / 土地 90.51m2
-
豊中市上野東三丁目 新築戸建 1号地
7,480万円
大阪モノレール線「少路」駅 徒歩12分
3LDK / 土地 163.48m2
本掲載情報と現況に差異がある場合、現況を優先します。掲載物件は売却済あるいは売出中止となる場合もあります。掲載写真やパース(絵)、または間取図に描かれている家具や車などは、価格に含まれておりません。予めご了承ください。周辺施設や周辺環境の写真は、過去に撮影したものをそのまま利用している場合があり、名称・外観・背景等、実際のものとは異なる場合がございます。
仲介物件には所定の仲介手数料(消費税等相当額を含みます)が必要です。
投資用・事業用不動産サイト ノムコム・プロ
