中古一戸建て
天王寺区勝山二丁目戸建て
-
9,480万円
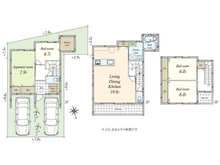
ローンシミュレーション - 間取り 4LDK
- 所在地 大阪府大阪市天王寺区 勝山2丁目
- 建物面積 114.19m2
- 土地面積 91.53m2
-
交通
大阪環状線「寺田町」駅 徒歩10分
大阪メトロ谷町線「天王寺」駅 徒歩13分 - 築年月 2018年3月
お問合せ
※写真の説明・詳細コメントについては、「物件TOP」タブの写真をご確認ください
お問合せ店舗
本掲載情報と現況に差異がある場合、現況を優先します。掲載物件は売却済あるいは売出中止となる場合もあります。掲載写真やパース(絵)、または間取図に描かれている家具や車などは、価格に含まれておりません。予めご了承ください。周辺施設や周辺環境の写真は、過去に撮影したものをそのまま利用している場合があり、名称・外観・背景等、実際のものとは異なる場合がございます。
仲介物件には所定の仲介手数料(消費税等相当額を含みます)が必要です。
投資用・事業用不動産サイト ノムコム・プロ
