天王寺区勝山二丁目戸建て
- 
                    1億800万円 ローンシミュレーション
- 間取り 4LDK
- 所在地 大阪府大阪市天王寺区 勝山2丁目
- 建物面積 114.19m2
- 土地面積 91.53m2
- 
                    交通
                    大阪環状線「寺田町」駅 徒歩10分
 大阪メトロ谷町線「天王寺」駅 徒歩13分
- 築年月 2018年3月
お問合せ
◆2018年築◆木造3階建て・延床約114m2・4LDK+WIC+SIC◆2台駐車可能(サイズによる) 
◆間口7m×間口8m×北向き道路
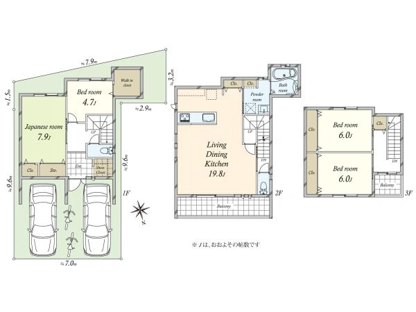
間取り図
 
                            
                    
                        - 3Dウォークスルー動画
                
                ※動画内に掲載の間取り図は現地で撮影した写真を基に作成しており、現状の間取り図とは相違している場合がございます。
   動画内の家具・調度品等は販売価格に含まれておりません。
                
   動画内の測定モードで表示される距離はおおよその数値です。正確には現地でご確認いただきますよう、お願いいたします。
                
   ご利用のブラウザによっては、正しく動作しない場合がございます。ご利用環境について
0120-919-692
(通話無料・携帯もOK)
物件番号 F95B9022
お問い合わせの際に、物件番号をお伝えいただくとスムーズです。
この物件のおすすめポイント
大阪市天王寺区勝山2丁目中古戸建
┗━━━━━━━━━━━★:*:。★.:*:・’★*:
┏┓ 物件概要
┗□━━━━━━━━━━━━━━━━━━━━━
〇土地面積 :91.53m2(公簿)約27.68坪
〇建物面積 :1階38.05m2
2階46.17m2
3階29.97m2 合計114.19m2(約34.54坪)
〇現況 :居住中
〇前面道路 :幅員約8m 北向き(公道)
┏┯━━━━━━━━━━━━━━━━━━━☆*:
┠★お す す め ポ イ ン ト
…………………………………………………………
★土地面積:91.53m2(公簿)
★建物延べ面積:114.19m2
★2018年3月建築
★カースペース並列2台駐車可能
(サイズによる制限あり)
★間取り
・4LDK+WIC+SIC
・約19.87帖のリビングダイニングキッチン
・全居室に収納有
・トイレ2か所あり(1階・2階)
周辺環境 _______________
━━━━┛━┛━┛━┛━┛
◆聖和小学校 徒歩4分(約280m)
◆天王寺中学校 徒歩10分(約650m)
◆興國高等学校 徒歩3分(約200m)
◆寺田町公園 徒歩1分(約37m)
◆ライフ寺田町駅前 徒歩9分(約650m)
┌──◆ ACCESS
└────────────────────
■大阪環状線「寺田町」駅 徒歩10分
■大阪メトロ谷町線「天王寺」駅 徒歩13分
大阪環状線・大阪メトロ御堂筋線「天王寺」駅 徒歩15分
☆ …━━━━━━━━━━━━━━━━━━━━━… ☆
※凡例:WIC=ウォークインクローゼット、SIC=シューズインクローゼット
※80mにつき1分計算で机上測定されております。
特長・共用施設
物件の特徴の説明ハッシュタグをクリックすることで、同じハッシュタグを含む物件を検索できます。
物件の概要・詳細
物件情報の見方| 価格 | 1億800万円 住宅ローンシミュレーション | ||
|---|---|---|---|
| 物件番号 | F95B9022 | ||
| 所在地 | 大阪府大阪市天王寺区 勝山2丁目 周辺地図を見る | ||
| 交通 | 大阪環状線「寺田町」駅 徒歩10分 大阪メトロ谷町線「天王寺」駅 徒歩13分 大阪環状線「天王寺」駅 徒歩15分 大阪メトロ御堂筋線「天王寺」駅 徒歩15分 | ||
| 間取り | 4LDK | ||
| 建物面積   | 114.19m2(34.54坪)(公簿) 1階:38.05m2 2階:46.17m2 3階:29.97m2 | 土地面積   | 91.53m2(27.68坪)(公簿) | 
| 構造   | 木造3階建て | ||
| 築年月 | 2018年3月 | 駐車場 | あり | 
| 土地権利   | 所有権 | 地目   | 宅地 | 
| 私道負担   | なし | セットバック   | ― | 
| 都市計画   | 市街化区域 | 用途地域   | 第二種住居地域 | 
| 建ぺい率   | 80% | 容積率   | 300% | 
| 接道状況   | 北8m公道 接面7m位置指定 | ||
| 設備 | 公営水道・本下水・都市ガス | ||
| 現況 | 居住中 | 引 渡 | 相談 | 
| 取引態様   | 仲介 | 国土法届出   | 不要 | 
| 備 考 | ●区画整理 / 区画整理計画有●都市計画法他制限 / 準防火地域、第2種高度地区 | ||
| 更新日 | 2025年11月1日 | 次回更新予定日 | 2025年11月15日 | 
お問合せ店舗
本掲載情報と現況に差異がある場合、現況を優先します。掲載物件は売却済あるいは売出中止となる場合もあります。掲載写真やパース(絵)、または間取図に描かれている家具や車などは、価格に含まれておりません。予めご了承ください。周辺施設や周辺環境の写真は、過去に撮影したものをそのまま利用している場合があり、名称・外観・背景等、実際のものとは異なる場合がございます。
            仲介物件には所定の仲介手数料(消費税等相当額を含みます)が必要です。
売却もお任せください
ご所有不動産の売却をご検討なら、まずは無料査定から
 投資用・事業用不動産サイト ノムコム・プロ
 投資用・事業用不動産サイト ノムコム・プロ
						 
                             
                                 
                             
                             
                             
                             
                             
                             
                             
                             
                             
                             
                             
                             
                             
                             
                             
                             
                             
                             
                             
                             
                             
                        
                        
                    
                     
                                                

 
  
  
  
 