上目黒2丁目 戸建
お問合せ
◇ 2016年11月築 注文住宅 解放感のある南西・南東の角地に佇む
メトロ日比谷線・東横線 「中目黒」駅 徒歩9分の立地
間取り図
- 3Dウォークスルー動画
※動画内に掲載の間取り図は現地で撮影した写真を基に作成しており、現状の間取り図とは相違している場合がございます。
動画内の家具・調度品等は販売価格に含まれておりません。
動画内の測定モードで表示される距離はおおよその数値です。正確には現地でご確認いただきますよう、お願いいたします。
ご利用のブラウザによっては、正しく動作しない場合がございます。ご利用環境について
0120-849-031
【通話無料・携帯もOK】
物件番号 F89BX013
お問い合わせの際に、物件番号をお伝えいただくとスムーズです。
あんしん建物補修サービス 対象物件
建物の検査・補修済の状態で購入でき、お引き渡しから最長5年間、建物に関するアフターサポートが付くから安心。
詳しくはこちらあんしん設備補修サービス 対象物件
住宅設備の検査・補修済の状態で購入でき、お引き渡しから最長5年のアフターサポートが付くから安心。
詳しくはこちらこの物件のおすすめポイント
『上目黒2丁目』に佇む 一戸建
2016年11月築 注文住宅 ~ フランスプロヴァンス風 ~
┏┓━━━━━━━━━━━━━━━━━━━━━━━
┗□ § おすすめポイント §
━━━━━━━━━━━━━━━━━━━━━━━━
■「中目黒」駅 徒歩9分、2路線利用可能な利便性
■「中目黒」駅までの道のりは平坦が続くフラットアプローチ
■ 中目黒・代官山エリアを身近に楽しめる立地
■ 南西・南東の角地
☆ 2016年11月築の注文住宅
☆ 駐車スペース1台/ハイルーフ車駐車可能 ※車種制限有り
☆ 豊富な収納スペース、モノと上手く付き合う暮らしを考えた動線
〔シューズインクローク、ウォークインクローゼット、パントリー、階段下収納、パウダールーム収納等〕
☆ 無垢フローリング、建具の素材(軽量無垢材)、珪藻土(一部壁面)、照明など質感と意匠に拘った内装
☆ トイレ2ヶ所:1階・2階
☆ TVモニター付インターホン
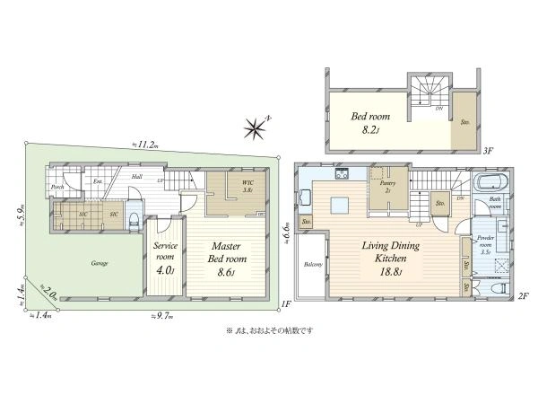
【1階】
◇ 駐車スペース1台 ハイルーフ車駐車可能
◇ 玄関からつながる大型シューズインクローク
・シューズの他、スーツケースやゴルフバックなど収納できます
◇ R加工を施した広い土間と広々とした玄関スペース
◇ 約8.6帖のゆとりある主寝室(マスターベッドルーム)
たっぷり収納できる約3.8帖のウォークインクローゼット付
◇ 約4帖のサービスルーム
・居室や、事務所使用や在宅勤務のワークスペース、
その他フリースペースとして多目的に利用できます
◇ トイレ
【2階】
◇ 約18.8帖のリビングダイニングキッチン
・南西、南東の窓より明るい陽射しが差込みます
◇ キッチン
機能性を備えた動線の良いL字オープンキッチン、アイランドキッチン台
・2ヵ所ある窓
・大型食洗機、ビルトインオーブン付き
◇ 約2帖のパントリー
・冷蔵庫や調理家電、食材等収納できます
◇ 階段下収納
◇ バルコニーの床はウッドデッキ材を使用
◇ 窓のあるバスルーム1618サイズ
・フルオートバス、浴室換気乾燥付
◇ 約3.5帖のパウダールーム、窓があり換気良好
・洗面カウンターボール下の収納棚の他、扉付きの収納もあります
・洗濯機置場
・トイレ
【3階】
◇ 約8.2帖の他、収納スペースがあります
・居室やワークスペース、その他フリースペースとして多目的に利用できます
───────────────────────────────────
□「目黒銀座商店街」まで徒歩1分、日常のお買い物や、区役所・郵便局も近く生活利便性良好
□ 気軽に散策できる立地、寄り道したくなるショップが多くあります
┌◆ 交通 Access
└───────────────────────────────────
■東京メトロ日比谷線、東急東横線「中目黒」駅 徒歩9分
┌◆ Life Information
└──────────────────────────────────
・ナチュラルローソン祐天寺一丁目まで約80m/徒歩1分
・ファミリーマート上目黒二丁目店まで約370m/徒歩5分
・セブンイレブン上目黒2丁目まで約560m/徒歩7分
・目黒銀座商店街まで約80m/徒歩1分
・商店街 八百重(青果)まで約100m/徒歩2分
・まいばすけっと中目黒5丁目店まで約330m/徒歩5分
・東急プレッセ中目黒店まで約620m/徒歩8分
・ライフ中目黒店まで約710m/徒歩9分
・ウエルシア上目黒2丁目まで約80m/徒歩1分
・ココカラファイン薬局中目黒店まで約640m/徒歩8分
・伊勢脇公園まで約200m/徒歩3分
・上目黒ファミリークリニックまで約100m/徒歩2分
・メディカルクリニック中目黒まで約390m/徒歩5分
・東京共済病院まで約1140m/徒歩15分
・区立中目黒小学校まで約550m/徒歩7分
・区立目黒中央中学校まで約830m/徒歩11分
******************************************************
□■ 是非一度ご内覧ください ■□
室内、周辺環境等、現地で実感できる情報は多くあります。
~ 是非、拘りのある住空間をご覧ください ~
室内のご見学希望は、担当:早坂 までお気軽にご連絡くださいませ。
連絡先:フリーダイヤル:0120-849-031
お買い替えのご相談等も承ります。
皆様からのご連絡をお待ちしております。
担当者コメント
恵比寿センター
早坂 智子 (はやさか ともこ)
物件のご説明や、住宅ローン・資金計画等のご相談等も承ります。
「中目黒」駅 徒歩9分、2016年11月築 注文住宅の一戸建
収納力があり、暮らしを考え使い易い間取
数多くのショップが連なり商業性のある「中目黒」駅を利用しながら、
静かな住宅街に住まう
目黒川沿いの桜など、緑と商業施設がバランス良くある周辺エリア
歩いて中目黒、代官山、青葉台、恵比寿エリアへ
アクセス良好な立地、魅力的ないくつもの街を楽しめるロケーション
寄り道したくなるスポットが多くあります
都心立地でありながら、周辺は良好な生活環境と利便性
是非一度ご覧ください
特長・共用施設
物件の特徴の説明ハッシュタグをクリックすることで、同じハッシュタグを含む物件を検索できます。
物件について
| 部屋 | #フローリング |
|---|---|
| 収納 | #納戸 #ウォークインクローゼット #シューズインクローゼット |
| キッチン | #食器洗浄機 #システムキッチン #アイランドキッチン #パントリー(食器・食品の収納庫) |
| 浴室・トイレ | #浴室に窓付き #浴室乾燥機 #追いだき機能 #トイレ2ヶ所 #温水洗浄便座 |
| 設備 | #都市ガス |
建物について
| 構造 | #注文住宅・ハウスメーカー施工 |
|---|---|
| セキュリティ | #TVモニタ付きインターフォン |
| 駐車場 | #ビルトインガレージ |
| その他 | #あんしん建物補修 #あんしん設備補修 #ホームクリーンアップ |
立地・周辺環境について
| 立地・環境 | #角地 #南道路(南東・南西含む) #容積率100%以上 #本下水 #2沿線以上利用可 #始発駅でらくらく通勤 #スーパーまで徒歩5分以内 #コンビニまで徒歩3分以内 #公園まで徒歩3分以内 #整形地 |
|---|
物件の概要・詳細
物件情報の見方| 価格 | 2億5,000万円 住宅ローンシミュレーション | ||
|---|---|---|---|
| 物件番号 | F89BX013 | ||
| 所在地 | 東京都目黒区 上目黒2丁目 周辺地図を見る | ||
| 交通 |
東京メトロ日比谷線「中目黒」駅 徒歩9分 東急東横線「中目黒」駅 徒歩9分 |
||
| 間取り | 2LDK+S+WIC、SIC | ||
|
建物面積
|
119.54m2(36.16坪)(現況) (車庫面積:12.11m2含) 1階:51.96m2 2階:51.44m2 3階:16.14m2 |
土地面積
| 78.49m2(23.74坪)(実測) |
|
構造
|
木造3階建て | ||
| 築年月 | 2016年11月 | 駐車場 | あり |
|
土地権利
|
所有権 |
地目
|
宅地 |
|
私道負担
|
12.76m2 |
セットバック
|
― |
|
都市計画
|
市街化区域 |
用途地域
|
第一種中高層住居専用地域 |
|
建ぺい率
|
70% |
容積率
|
160% |
|
接道状況
|
南西3.2m公道・南東2.5m私道 | ||
| 設備 | 公営水道・本下水・都市ガス | ||
| 現況 | 居住中 | 引 渡 | 相談 |
|
取引態様
|
仲介 |
国土法届出
|
不要 |
| 備 考 | ●都市計画法他制限 / 準防火地域、17m第2種高度地区、敷地面積の最低限度60m2 ●上記土地面積は、有効宅地面積です。(隅切り部分0.99m2含む) ●上記建物面積・階数は現況です。増築未登記部分(約16.14m2、3階部分)が含まれます。2016年12月増改築 |
||
| 更新日 | 2025年12月7日 | 次回更新予定日 | 2025年12月21日 |
お問合せ店舗
同じエリアの中古一戸建て
-
NEW 12/12
目黒区下目黒5丁目 中古戸建
1億6,980万円
山手線「目黒」駅 徒歩18分
-
NEW 12/12
目黒区柿の木坂2丁目 中古戸建
1億980万円
東急東横線「都立大学」駅 徒歩10分
-
NEW 12/12
目黒区東が丘2丁目 中古戸建
1億5,200万円
東急田園都市線「駒沢大学」駅 徒歩8分
-
新価格 12/8
目黒区上目黒五丁目中古戸建
2億7,800万円
新価格
東急東横線「祐天寺」駅 徒歩10分
-
目黒区平町二丁目戸建
2億2,980万円
東急東横線「都立大学」駅 徒歩8分
同じエリアの新築一戸建て
-
NEW 12/11
目黒区八雲 新築戸建B号棟
1億5,400万円
東急東横線「都立大学」駅 徒歩9分
4LDK / 土地 139.11m2
-
NEW 12/11
目黒区八雲 新築戸建A号棟
1億5,900万円
東急東横線「都立大学」駅 徒歩9分
4LDK / 土地 139.11m2
-
目黒区柿の木坂3丁目 新築戸建 1号棟
1億9,990万円
東急田園都市線「駒沢大学」駅 徒歩15分
1LDK+2S / 土地 106.64m2
-
目黒区柿の木坂3丁目 新築戸建 2号棟
1億8,590万円
東急田園都市線「駒沢大学」駅 徒歩15分
1LDK+2S / 土地 115.5m2
-
目黒区南~kuroi家~
8,680万円
東急目黒線「大岡山」駅 徒歩7分
2LDK+S / 土地 86.62m2
本掲載情報と現況に差異がある場合、現況を優先します。掲載物件は売却済あるいは売出中止となる場合もあります。掲載写真やパース(絵)、または間取図に描かれている家具や車などは、価格に含まれておりません。予めご了承ください。周辺施設や周辺環境の写真は、過去に撮影したものをそのまま利用している場合があり、名称・外観・背景等、実際のものとは異なる場合がございます。
仲介物件には所定の仲介手数料(消費税等相当額を含みます)が必要です。
売却もお任せください
ご所有不動産の売却をご検討なら、まずは無料査定から
投資用・事業用不動産サイト ノムコム・プロ

