目黒区碑文谷1丁目 中古戸建
お問合せ
★5駅(学芸大学、都立大学、大岡山、西小山、洗足駅)・3路線(東横線、目黒線、大井町線)利用可能
★駐車スペースあり ★日当たり良好 ★室内一部リフォーム履歴有(2025年11月)
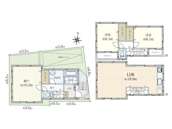
間取り図
0120-771-251
【通話無料・携帯もOK】
物件番号 F78BZ015
お問い合わせの際に、物件番号をお伝えいただくとスムーズです。
リフォーム内容
・インターフォン新規交換(子機付き)
・浴室交換
・洗面化粧台交換
・地下1階部分トイレ交換
・地下1階部分フローリング張替
・地下1階部分クロス張替
・地下1階部分建具交換
・玄関扉交換
・靴箱交換
・地下1階部分換気扇交換
・地下1階部分エアコン新規交換
この物件のおすすめポイント
■□■□■□■□■□■□■□■□■□■□■□■□■□■□■□■□■□■□■□■□
━━━━━━━━━━━━━━━━━━━━━━━━━━━━━━━━━━━━━━━━
《 目黒区碑文谷一丁目 中古戸建 》
━━━━━━━━━━━━━━━━━━━━━━━━━━━━━━━━━━━━━━━━
■□■□■□■□■□■□■□■□■□■□■□■□■□■□■□■□■□■□■□■
┏┓ 本物件ポイント
┗□━━━━━━━━━━━━━━━━━━━━━━━━━━━━━━━━━━━━━━
●駐車スペース付き
●室内一部リフォーム履歴あり(2025年11月完了)
・インターフォン新規交換(子機付き)
・浴室交換
・洗面化粧台交換
・地下1階部分トイレ交換
・地下1階部分フローリング張替
・地下1階部分クロス張替
・地下1階部分建具交換
・玄関扉交換
・靴箱交換
・地下1階部分換気扇交換
・地下1階部分エアコン新規交換
●トイレ2か所あり
●各居室6帖以上あり、ゆとりのある間取りです
●第一種低層住居専用地域に存しているため、閑静な住宅街
●北側は本物件駐車場、東側は道路、南側は隣地の通路部分となっており、
3方角地のような特徴があり、日当たり・通風良好
●LDKは、約18帖あり
◆◆◆◆◆◆◆◆◆◆◆◆◆◆◆◆◆◆◆◆◆◆◆
お買い替えのお客様もスムーズに購入頂けます
◆◆◆◆◆◆◆◆◆◆◆◆◆◆◆◆◆◆◆◆◆◆◆
弊社では、マンション買換保証・つなぎ融資制度を
ご用意しております!
まだ自宅のローンは残っているけど
買い替えたいという方はお気軽にご相談下さい。
また売却額次第でとお考え中の方も御相談頂ければ
お力になります。
◆◆◆◆◆◆◆◆◆◆◆◆◆◆◆◆◆◆◆◆◆◆◆
資金計画のご相談受付中
◆◆◆◆◆◆◆◆◆◆◆◆◆◆◆◆◆◆◆◆◆◆◆
「住宅ローンはいくら借りれるんだろう?」
「月々の返済額をいくらにしたい!」等、
資金計画で疑問や悩みがある際は
お気軽にご相談下さい。
現在の金利等を含めて、お借入銀行の特徴や、
お客様に合った住宅ローンの組み方を
一緒に考えていきます。
※本物件以外での資金計画のご相談も大丈夫です!
特長・共用施設
物件の特徴の説明ハッシュタグをクリックすることで、同じハッシュタグを含む物件を検索できます。
物件の概要・詳細
物件情報の見方| 価格 | 1億1,900万円 住宅ローンシミュレーション | ||
|---|---|---|---|
| 物件番号 | F78BZ015 | ||
| 所在地 | 東京都目黒区 碑文谷1丁目 周辺地図を見る | ||
| 交通 |
東急東横線「学芸大学」駅 徒歩18分 東急東横線「都立大学」駅 徒歩16分 東急目黒線「大岡山」駅 徒歩17分 東急目黒線「西小山」駅 徒歩17分 |
||
| 間取り | 2LDK+S | ||
|
建物面積
|
94.39m2(28.55坪)(公簿) 1階:33.12m2 2階:28.98m2 地下:32.29m2 |
土地面積
| 62.97m2(19.04坪)(公簿) |
|
構造
|
木造2階地下1階建て | ||
| 築年月 | 2004年11月 | 駐車場 | あり |
|
土地権利
|
所有権 |
地目
|
宅地(現況:宅地) |
|
私道負担
|
6.95m2 |
セットバック
|
済 |
|
都市計画
|
市街化区域 |
用途地域
|
第一種中高層住居専用地域 |
|
建ぺい率
|
60% |
容積率
|
160% |
|
接道状況
|
東4m私道 接面6.8m | ||
| 設備 | 公営水道・本下水・都市ガス | ||
| 現況 | 居住中 | 引 渡 | 相談 |
|
取引態様
|
仲介 |
国土法届出
|
不要 |
| 備 考 | ●都市計画法他制限 / 準防火地域、第1種高度地区 構造:木造・RC造地上2階地下1階建 |
||
| 更新日 | 2026年1月30日 | 次回更新予定日 | 2026年2月13日 |
お問合せ店舗
同じエリアの中古一戸建て
-
新価格 2/4
目黒区八雲1丁目 賃貸併用住宅
1億3,800万円
新価格
東急東横線「都立大学」駅 徒歩5分
-
NEW 1/30
上目黒2丁目 戸建
2億4,800万円
東京メトロ日比谷線「中目黒」駅 徒歩9分
-
目黒区駒場一丁目 中古戸建て
3億4,800万円
京王井の頭線「駒場東大前」駅 徒歩4分
-
目黒区目黒4丁目 中古戸建
9,980万円
東急東横線「祐天寺」駅 徒歩15分
-
目黒区目黒本町4丁目 中古戸建
1億2,980万円
東急目黒線「武蔵小山」駅 徒歩9分
同じエリアの新築一戸建て
-
NEW 1/31
目黒区洗足1丁目 新築戸建
1億3,500万円
東急目黒線「西小山」駅 徒歩7分
4LDK / 土地 75.4m2
-
大岡山1丁目新築戸建 B号棟/全2棟
1億4,980万円
東急目黒線「大岡山」駅 徒歩10分
2LDK+2S / 土地 70.55m2
-
大岡山1丁目新築戸建 A号棟/全2棟
1億4,980万円
東急目黒線「大岡山」駅 徒歩11分
2LDK+2S / 土地 72.98m2
-
目黒区南~kuroi家~
7,980万円
東急目黒線「大岡山」駅 徒歩7分
2LDK+S / 土地 86.62m2
-
目黒区八雲 新築戸建B号棟
1億5,400万円
東急東横線「都立大学」駅 徒歩9分
4LDK / 土地 139.11m2
本掲載情報と現況に差異がある場合、現況を優先します。掲載物件は売却済あるいは売出中止となる場合もあります。掲載写真やパース(絵)、または間取図に描かれている家具や車などは、価格に含まれておりません。予めご了承ください。周辺施設や周辺環境の写真は、過去に撮影したものをそのまま利用している場合があり、名称・外観・背景等、実際のものとは異なる場合がございます。
仲介物件には所定の仲介手数料(消費税等相当額を含みます)が必要です。
売却もお任せください
ご所有不動産の売却をご検討なら、まずは無料査定から
投資用・事業用不動産サイト ノムコム・プロ

