世田谷区等々力一丁目中古戸建
お問合せ
★2006年築ベルコートタウンシリーズ ★2LDK+Sの家族の暮らしにフィットする間取り
★南西ひな壇の区画・17.5畳のリビング~2面採光で陽光がたっぷり差し込みます~
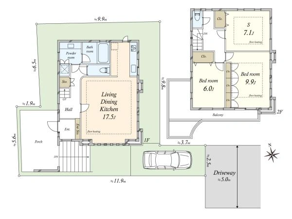
間取り図
0120-975-858
【通話無料・携帯もOK】
物件番号 F66BZ018
お問い合わせの際に、物件番号をお伝えいただくとスムーズです。
あんしん建物補修サービス 対象物件
建物の検査・補修済の状態で購入でき、お引き渡しから最長5年間、建物に関するアフターサポートが付くから安心。
詳しくはこちらあんしん設備補修サービス 対象物件
住宅設備の検査・補修済の状態で購入でき、お引き渡しから最長5年のアフターサポートが付くから安心。
詳しくはこちらこの物件のおすすめポイント
╋■╋
■╋
╋ ◆ 等々力1丁目 中古戸建 ◆
緑と暮らす、都心の贅沢。等々力渓谷に寄り添う理想の住まい♪
2006年築。陽光あふれる空間は、家族の憩いの場にぴったり♪
╋━━━━━━━━━━━━━━━━━━━━━━━━━━━━━━━━━━
種 別:一戸建て住宅
築 年 月:2006年4月築
土 地:138.19m2(約41.8坪)
建 物:99.22m2(約30.01坪)
間 取:2LDK+S
施 工:みすゞ建設株式会社
╋━━━━━━━━━━━━━━━━━━━━━━━━━━━━━━━━━━
┏┓━━━━━━━━━━━━━━━━━━━━━━━━━━━━━━━━━
┗□ 交 通 ア ク セ ス
━━━━━━━━━━━━━━━━━━━━━━━━━━━━━━━━━━━
【徒歩の場合】
◎東急大井町線
・・・・「等々力」駅 徒歩12分
【車の場合】
◎車庫スペース1台分確保(幅2500mmまで)
国道・一般道
⇒「目黒通り」「環八通り」「多摩堤通り」etc...
高速道路
⇒「玉川IC」「用賀IC」により、「首都高」「第三京浜」「東名」etc...
┏┓━━━━━━━━━━━━━━━━━━━━━━━━━━━━━━━━━
┗□ 建物部分のPOINT
━━━━━━━━━━━━━━━━━━━━━━━━━━━━━━━━━━━
●2006年築 ベルコートタウンシリーズ
「ベルコートタウン世田谷等々力 全5邸のうちの1邸
等々力渓谷の豊かな緑に寄り添う住宅街は、自然と都市の理想的な
調和を実現しています。都心にありながら、四季折々の景観を楽し
める贅沢なロケーション。静けさと利便性を兼ね備えたこのエリア
は、上質な暮らしを求める方にふさわしい環境です。
●南西ひな壇の区画
南西ひな壇に位置するため、陽光をたっぷり取り込む明るい住まい。
開放感あふれる立地で、心地よい光と風に包まれる暮らしを実現しま
す。日当たりの良さは、家族の笑顔をさらに輝かせる大きな魅力です♪
●2024年に外壁塗装・屋根カバー工法工事 完了
白を基調とした外観が放つ洗練された美しさがあります。2024年に外壁
塗装工事を完了し、築年数を感じさせない輝きを維持しており、都心近
くで、これほど上質なデザインとメンテナンス性を兼ね備えた物件は希
少性も高く、特別な存在感を放っています♪
●憩いのティータイムにも便利な、玄関前ポーチ
玄関前のポーチは、家族やゲストをやさしく迎える憩いのスペース。
ちょっとしたガーデニングや季節の花を飾れば、毎日の暮らしに彩り
を添えます。子どもと一緒に外遊びの準備をしたり、休日にゆったり
と過ごすひとときにもぴったりな、心地よい空間です。
玄関にあしらわれたステンドグラスは、夜間にも色彩豊かな光で
ご家族皆様を迎えてくれます♪
┏┓━━━━━━━━━━━━━━━━━━━━━━━━━━━━━━━━━
┗□ 室内のPOINT
━━━━━━━━━━━━━━━━━━━━━━━━━━━━━━━━━━━
●家族の笑顔が集まる、陽だまりのリビングダイニング
17.5帖の広々としたリビングは、南と西の2面採光で陽光がたっぷ
り差し込み、明るく開放的な空間を演出します。自然光に包まれる
心地よさは、家族の時間をより豊かにし、インテリアの美しさを引
き立てます。毎日の暮らしに、光とぬくもりを届けます♪
また、冬場に嬉しい床暖房付き♪
●家族の時間をもっと楽しく。収納力と機能性を備えた明るいキッチン
ホワイトを基調とした清潔感あふれるキッチンは、家族の毎日を快適
にする工夫が満載。広々としたワークトップで料理もスムーズ、ビル
トイン食洗機や豊富な収納で家事の負担を軽減します。一戸建て住ま
いならではのお勝手口があるのも、嬉しいポイントです♪
●ホテルライクな洗面空間と、ゆったり癒しのバスルーム
洗練されたデザインが際立つ水回り空間。ブルーのタイルが爽やか
なアクセントを添え、丸型ミラーとボウル型洗面台はホテルライク
な上質感を演出します。木目調カウンターの重厚感と豊富な収納が、
機能美と高級感を両立。浴室は広々としたスペースに淡いグレーと
ホワイトのタイルが調和し、リラックスを極める贅沢なひとときを
叶えます♪
トイレも1階2階の各階に設置済み。
●広さと使いやすさを兼ね備えた、
2LDK+Sの家族の暮らしにフィットする間取り
★9.9帖の洋室
ベッドを2台置いても余裕があり、主寝室として理想的。大きな
窓から自然光が入り、明るく快適な空間です。
★6.0帖の洋室
書斎や子ども部屋にぴったりなサイズ感。シンプルなレイアウト
で家具配置も自由自在。
★7.1帖サービスルーム
居室としても利用可能です。ワークスペースや趣味部屋、ゲスト
ルームなど多目的に使える広さ。天井のデザインがモダンで、
居心地の良さを演出。
●野村の仲介+『あんしん建物補修』『あんしん設備補修』対象物件♪
…中古物件でもあんしん♪
買主様には建物診断結果の概要を交付
住宅設備機器に当社提携会社のアフターサポート保証付
※詳細は営業担当者にお問い合わせください。
※本サービスは、動作確認による結果に基づき、一定期間に生じた
特定の事象について補修・交換するものであり、設備の故障や不
具合が生じないことを保証するものではありません。
※故障・不具合等の内容、原因によっては、本サービスの対象外となるものがあります。
※本サービスは予告なく変更・終了する場合がございます。
┏┓━━━━━━━━━━━━━━━━━━━━━━━━━━━━━━━━━
┗□ L i f e I n f o r m a t i o n
━━━━━━━━━━━━━━━━━━━━━━━━━━━━━━━━━━━
【買い物施設】
●成城石井 等々力店・・・・・徒歩11分(約810m)
●まいばすけっと
玉堤2丁目店・・・・・・徒歩4分 (約320m)
●ココカラファイン
等々力店・・・・・・・徒歩10分(約800m)
●セブンイレブン
世田谷等々力1丁目店・・・徒歩2分(約160m)
【学校】
●世田谷区立玉堤小学校・・・・徒歩3分 (約170m)
●世田谷区立尾山台中学校・・・徒歩12分(約890)
【公園等】
●等々力渓谷公園・・・・・・・徒歩4分(約320m)
●御岳山古墳・・・・・・・・・徒歩5分(約260m)
┏┓お買換えの場合もスムーズにご購入頂けます!
┗□━━━━━━━━━━━━━━━━━━━━━━━━━━━━━━━━━
弊社では、買換保証制度・つなぎ融資制度を
ご用意しております!
お買換えの場合、ほとんどの方がご売却を先に行い、
売却が決まってから、購入場所を見つける流れになります。
その為、多くの方は新居入居前に一度引越しを行い、
賃料を払う「仮住まい」が必要となります。
弊社の【買換保証】と【つなぎ融資】を
ご利用頂ければ、仮住まいやWローンにならずに
お買い換えをスムーズに進めることが可能です。
(先行購入が可能となります。)
「まだ自宅のローンは残っているけど買換えたい」
という方はお気軽にご相談下さい。
また、「売却額次第では・・・」とお考え中の方も
ご相談頂けますと幸いです。
【買換保証】
一定期間内に売却できなかった場合、あらかじめ
お約束した価格で当社が買い取ります。
「万が一、売れなかったらどうしよう」という
お客様の不安を解消します!
⇒ nomu.com/seller/assurance.html
【つなぎ融資制度】
ゆとりあるお買換えを実現するため、売却物件の
お引き渡しまでの間をサポートするサービスです。
⇒ nomu.com/seller/financing.html
┏┓資金計画のご相談受付中!!!
┗□━━━━━━━━━━━━━━━━━━━━━━━━━━━━━━━━━
「住宅ローンはいくら借りられるの?」
「月々の返済額をいくらにしたい!」、
「変動金利か固定金利のどちらが良いのだろう?」
資金計画で疑問や悩み等ございましたら、是非
ご相談下さいませ。
現在の金利情勢やお借入銀行の特徴からお客様に
合った住宅ローンの組み方をご提案いたします。
※本物件以外での資金計画のご相談も承ります。
お気軽にご相談下さいませ。
《弊社ご紹介先銀行一覧》
三菱UFJ銀行・三井住友信託銀行・みずほ銀行
三井住友銀行・各地方銀行・フラット35利用銀行
ソニー銀行、auじぶん銀行、住信SBI銀行 等
担当者コメント
自由が丘営業部
宇都宮 勇樹 (うつのみや ゆうき)
物件に関して、ご質問等ございましたら、
担当『 宇都宮 』まで
お気軽にお問い合わせください。
担当直通携帯: 070-4163-1550
※火曜日・水曜日は定休日です。
定休日・夜間は上記番号にお問い合わせください。
皆様からのご連絡心よりお待ちしております。
■╋■╋━━━━━━━━━━━━━━━━━╋■╋■
特長・共用施設
物件の特徴の説明ハッシュタグをクリックすることで、同じハッシュタグを含む物件を検索できます。
物件について
| 位置 | #南向き |
|---|---|
| 部屋 | #リビング・ダイニング15畳以上 #フローリング #全室2面採光 #全居室フローリング |
| 収納 | #納戸 #床下収納 #全居室収納 |
| キッチン | #食器洗浄機 #システムキッチン |
| 浴室・トイレ | #浴室に窓付き #浴室乾燥機 #追いだき機能 #オートバス #トイレ2ヶ所 |
| 設備 | #床暖房 #都市ガス |
建物について
| セキュリティ | #TVモニタ付きインターフォン #ホームセキュリティ #セキュリティ充実 |
|---|---|
| その他 | #あんしん建物補修 #あんしん設備補修 #建物調査済み |
立地・周辺環境について
| 立地・環境 | #低層住居専用地域 #分譲地内 #南ひな壇 #容積率100%以上 #本下水 #小学校まで徒歩5分以内 #スーパーまで徒歩5分以内 #コンビニまで徒歩3分以内 #緑が見える #眺望良好 #周辺交通量少なめ |
|---|
周辺施設
物件周辺の地図を確認する-

駅
等々力駅
現地より約904m
徒歩12分
物件の概要・詳細
物件情報の見方| 価格 | 1億4,800万円 住宅ローンシミュレーション | ||
|---|---|---|---|
| 物件番号 | F66BZ018 | ||
| 所在地 | 東京都世田谷区 等々力1丁目 周辺地図を見る | ||
| 交通 |
東急大井町線「等々力」駅 徒歩12分 東急大井町線「尾山台」駅 徒歩14分 |
||
| 間取り | 2LDK+S | ||
|
建物面積
|
99.22m2(30.01坪)(公簿) 1階:49.66m2 2階:49.56m2 |
土地面積
| 138.19m2(41.8坪) |
|
構造
|
木造2階建て | ||
| 築年月 | 2006年4月 | 駐車場 | あり |
|
土地権利
|
所有権 |
地目
|
宅地(現況:宅地) |
|
私道負担
|
141m2×1 / 6 |
セットバック
|
― |
|
都市計画
|
市街化区域 |
用途地域
|
第一種中高層住居専用地域・第一種低層住居専用地域 |
|
建ぺい率
|
60%・40% |
容積率
|
200%・80% |
|
接道状況
|
東5m私道 接面2.5m | ||
| 設備 | 公営水道・本下水・都市ガス | ||
| 現況 | 居住中 | 引 渡 | 相談 |
|
取引態様
|
仲介 |
国土法届出
|
不要 |
| 備 考 | ●都市計画法他制限 / 防火地域、第1種高度地区、風致地区である、第二種風致 | ||
| 更新日 | 2026年1月25日 | 次回更新予定日 | 2026年2月8日 |
お問合せ店舗
同じエリアの中古一戸建て
-
新価格 2/7
世田谷区南烏山1丁目 中古戸建
7,099万円
新価格
京王線「芦花公園」駅 徒歩5分
-
新価格 2/6
世田谷区祖師谷6丁目 戸建て
7,899万円
新価格
小田急小田原線「祖師ヶ谷大蔵」駅 徒歩20分
-
NEW 2/6
世田谷区上祖師谷2丁目中古戸建
7,490万円
京王線「千歳烏山」駅 徒歩18分
-
新価格 2/6
世田谷区三宿2丁目 中古戸建
9,798万円
新価格
東急田園都市線「池尻大橋」駅 徒歩15分
-
NEW 2/5
世田谷区等々力5丁目中古戸建
1億4,880万円
東急大井町線「尾山台」駅 徒歩6分
同じエリアの新築一戸建て
-
NEW 2/1
世田谷区世田谷1丁目 新築戸建 B号棟
1億9,000万円
東急世田谷線「世田谷」駅 徒歩5分
2LDK+2S / 土地 99.67m2
-
NEW 2/1
世田谷区世田谷1丁目 新築戸建 A号棟
1億9,000万円
東急世田谷線「世田谷」駅 徒歩5分
3LDK+S / 土地 99.68m2
-
NEW 2/1
世田谷区成城7丁目 新築戸建 B号棟
1億6,800万円
小田急小田原線「成城学園前」駅 徒歩13分
3LDK / 土地 131.8m2
-
NEW 2/1
世田谷区成城7丁目 新築戸建 A号棟
1億6,800万円
小田急小田原線「成城学園前」駅 徒歩13分
3LDK / 土地 133.71m2
-
世田谷区喜多見9丁目 新築戸建1号棟
9,399万円
小田急小田原線「喜多見」駅 徒歩9分
4LDK / 土地 116.41m2
本掲載情報と現況に差異がある場合、現況を優先します。掲載物件は売却済あるいは売出中止となる場合もあります。掲載写真やパース(絵)、または間取図に描かれている家具や車などは、価格に含まれておりません。予めご了承ください。周辺施設や周辺環境の写真は、過去に撮影したものをそのまま利用している場合があり、名称・外観・背景等、実際のものとは異なる場合がございます。
仲介物件には所定の仲介手数料(消費税等相当額を含みます)が必要です。
売却もお任せください
ご所有不動産の売却をご検討なら、まずは無料査定から
投資用・事業用不動産サイト ノムコム・プロ

