足立区栗原二丁目 中古戸建 NEW 10/02
お問合せ
西新井駅徒歩13分、車4台駐車可能なガレージ付6LDKの大型住宅
※車は車種によります。
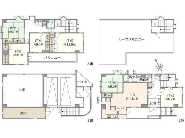
間取り図

0120-356-342
(通話無料・携帯もOK)
物件番号 F61BX008
お問い合わせの際に、物件番号をお伝えいただくとスムーズです。
この物件のおすすめポイント
┗□━━━━━━━━━━━━━━━━━━━□
□東武スカイツリーライン「西新井」駅 徒歩13分
□東武スカイツリーライン「竹ノ塚」駅 徒歩15分
┏┓ おすすめポイント
┗□━━━━━━━━━━━━━━━━━━━□
■北東角地
■土地面積:152.70m2(46.19坪)
建物面積:280.42m2(84.82坪)
■間取り:6LDK+ガレージ
・1階:ガレージ(4台駐車可能)※車種によります
・2階:玄関、LDK、和室6帖、洋室8.7帖、洗面所、風呂、トイレ
・3階:洋室11帖、洋室9帖、洋室6帖、和室6帖
・屋上あり
■広く、開放感のある玄関
■周辺に商業施設が充実
┏┓ 周辺環境
┗□━━━━━━━━━━━━━━━━━━━━□
~商業施設~
・ドラッグセイムス栗原店------------------徒歩2分(約144m)
・スギ薬局足立六月店-----------------------徒歩5分(約340m)
・どらっぐぱぱす島根店---------------------徒歩7分(約492m)
・まいばすけっと足立六月店----------------徒歩2分(約144m)
・マミーマート足立島根店------------------徒歩7分(約500m)
・イオン西新井店---------------------------徒歩13分(約995m)
・アリオ西新井(イトーヨーカドー)-------徒歩20分(約1,575m)
・セブンイレブン足立六月3丁目店----------徒歩4分(約290m)
~教育施設~
・足立区立島根小学校-----------------------徒歩7分(約545m)
・足立区立第十中学校-----------------------徒歩15分(約1,135m)
~その他~
・郵便局(足立栗原北局)--------ー---------徒歩5分(約350m)
・ギャラクシティ---------------------------徒歩10分(約735m)
注 意:駅からの距離、施設からの距離は【距離測定ソフト】【グーグルマップ】を
参照しております。実際の体感距離は必ずお客様ご自身でもお確かめ
頂きたく願います。80mにつき1分計算で机上測定されております。
担当者コメント


本店営業部
皆田 晴隆 (かいだ はるたか)
ガレージ付き住宅をお探しの方は、是非1度ご覧ください。
特長・共用施設
物件の特徴の説明ハッシュタグをクリックすることで、同じハッシュタグを含む物件を検索できます。
周辺施設
物件周辺の地図を確認する-
駅
西新井駅
現地より約1,020m
徒歩13分 -
ショッピングセンター
イオン西新井店
現地より約995m
徒歩13分 -
スーパー
まいばすけっと足立六月店
現地より約144m
徒歩2分 -
スーパー
マミーマート足立島根店
現地より約500m
徒歩7分
物件の概要・詳細
物件情報の見方価格 | 8,980万円 住宅ローンシミュレーション | ||
---|---|---|---|
物件番号 | F61BX008 | ||
所在地 | 東京都足立区 栗原2丁目 周辺地図を見る | ||
交通 |
東武伊勢崎・大師線「西新井」駅 徒歩13分 東武伊勢崎・大師線「竹ノ塚」駅 徒歩15分 |
||
間取り | 6LDK | ||
建物面積
![]() |
280.42m2(84.82坪) 1階:97.78m2 2階:91.32m2 3階:91.32m2 |
土地面積
![]() | 152.7m2(46.19坪)(公簿) |
構造
![]() |
RC造3階建て | ||
築年月 | 1988年12月 | 駐車場 | あり |
土地権利
![]() |
所有権 |
地目
![]() |
宅地(現況:宅地) |
私道負担
![]() |
なし |
セットバック
![]() |
― |
都市計画
![]() |
市街化区域 |
用途地域
![]() |
第一種住居地域 |
建ぺい率
![]() |
60% |
容積率
![]() |
300% |
接道状況
![]() |
北7.6m公道・東14.9m公道 | ||
設備 | 公営水道・本下水・都市ガス | ||
現況 | 居住中 | 引 渡 | 相談 |
取引態様
![]() |
仲介 |
国土法届出
![]() |
不要 |
備 考 | ●都市計画法他制限 / 準防火地域、第3種高度地区 | ||
更新日 | 2025年10月2日 | 次回更新予定日 | 2025年10月16日 |
お問合せ店舗
同じエリアの中古一戸建て
-
NEW 10/02 足立区大谷田1丁目 5,200万円 千代田・常磐緩行線「亀有」駅 バス16分 (平常時11分) (バス停 大谷田) 徒歩4分
-
新価格 09/29 東京都足立区西綾瀬4丁目 一戸建て 4,680万円 新価格 千代田・常磐緩行線「綾瀬」駅 徒歩8分
-
足立区舎人3丁目 中古戸建て 3,499万円 日暮里舎人ライナー「見沼代親水公園」駅 徒歩10分
-
足立区西新井4丁目 中古戸建 6,180万円 日暮里舎人ライナー「谷在家」駅 徒歩9分
-
東京都足立区千住大川町 一戸建て 8,980万円 東京メトロ千代田線「北千住」駅 徒歩18分
同じエリアの新築一戸建て
-
新価格 10/01 足立区保木間5丁目 新築一戸建て 3,180万円 新価格 東武伊勢崎・大師線「竹ノ塚」駅 徒歩23分 2LDK+S / 土地 37.18m2
-
新価格 09/30 足立区島根2丁目 新築一戸建て 5,590万円 新価格 東武伊勢崎・大師線「梅島」駅 徒歩17分 3LDK+S / 土地 83m2
-
新価格 09/30 足立区六月1丁目 新築一戸建て 5,090万円 新価格 東武伊勢崎・大師線「竹ノ塚」駅 徒歩19分 3LDK+S / 土地 93.29m2
-
新価格 09/25 足立区江北3丁目 新築戸建4号棟 4,699万円 新価格 日暮里舎人ライナー「江北」駅 徒歩14分 2LDK+2S / 土地 70.02m2
-
足立区青井3丁目 新築一戸建て 5,740万円 つくばエクスプレス「青井」駅 徒歩4分 2LDK+S / 土地 71.78m2
本掲載情報と現況に差異がある場合、現況を優先します。掲載物件は売却済あるいは売出中止となる場合もあります。掲載写真やパース(絵)、または間取図に描かれている家具や車などは、価格に含まれておりません。予めご了承ください。周辺施設や周辺環境の写真は、過去に撮影したものをそのまま利用している場合があり、名称・外観・背景等、実際のものとは異なる場合がございます。
仲介物件には所定の仲介手数料(消費税等相当額を含みます)が必要です。
東武伊勢崎・大師線の中古一戸建てを検索する
東京都足立区中古一戸建て売却・査定
売却もお任せください
ご所有不動産の売却をご検討なら、まずは無料査定から