藤沢市片瀬3丁目 一戸建
お問合せ
■エリアの雰囲気にマッチする内外装が目を惹く、湘南を感じ、緑に囲まれるログハウス
■無垢材や珪藻土を惜しげもなく使用した、温かみのある【大人の隠れ家】を是非ご検討ください
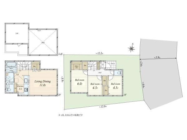
間取り図
- 3Dウォークスルー動画
※動画内に掲載の間取り図は現地で撮影した写真を基に作成しており、現状の間取り図とは相違している場合がございます。
動画内の家具・調度品等は販売価格に含まれておりません。
動画内の測定モードで表示される距離はおおよその数値です。正確には現地でご確認いただきますよう、お願いいたします。
ご利用のブラウザによっては、正しく動作しない場合がございます。ご利用環境について
0120-182-238
【通話無料・携帯もOK】
物件番号 F60BZ002
お問い合わせの際に、物件番号をお伝えいただくとスムーズです。
この物件のおすすめポイント
◆ ◇ ◆ 藤沢市片瀬3丁目 一戸建 ◆ ◇ ◆
━━━━━━━━━━━━━━━━━━━━
湘南の雰囲気にマッチする内外装が目を惹く、
拘りが詰まった緑に囲まれるログハウス。
海岸まで約960m(徒歩2分)の「海近立地」&
湘南のシンボル「江ノ電」江ノ島駅が徒歩9分
存分にエリアの魅力をお楽しみ頂けます。
海の近くにある&緑の豊かな自然の中で
子育てをしたいと考えるファミリーは勿論、
都心の喧騒を離れて余暇を過ごす別荘や、
定年を機に憧れのエリアで老後を過ごしたい
アクティブシニア世帯にもお勧めの物件です。
┏┓セールスポイント
┗□━━━━━━━━━━━━━━━━━━
■無垢材や珪藻土を惜しげもなく使用!
湘南の雰囲気にマッチした拘りの注文住宅
⇒自然に囲まれた湘南地域×緑溢れる片瀬山の
雰囲気に溶け込む、売主様拘りの注文設計。
⇒外観は洗練されたオフホワイトをベースに、
玄関周りやバルコニーに木目調を組み込み、
木々に囲まれ、通りを離れた立地も相まって、
大人の隠れ家チックな暮らしを実現できます。
⇒室内は無垢材と珪藻土をふんだんに使用。
どこにいても木の温もりが感じられる内装で、
流行の北欧テイストなインテリアにもマッチ。
■地震や風に強い2×4(ツーバイフォー)工法!
⇒床・壁・屋根の各「面」が一体となって
建物を支える【2×4(ツーバイフォー)】は、
外力を「面」で受けるため、一般的に頑丈で、
耐震・耐火・断熱・気密性能が高い工法です。
■背面(敷地西側)は竹林のため、
建替えリスク低&木漏れ日が心地良い環境!
⇒敷地西側には竹林が広がっており、
隣接地が急に建て替わる懸念の低い立地。
木々や枝葉が西日を程良く遮ってくれます。
■火気を使わず安心・安全のオール電化住宅!
⇒小さなお子様やペットさんのいるご家庭でも
安心してお住まい頂けます。
⇒キッチンコンロはIHクッキングヒーター仕様。
火を出さずヤケドしにくい安全性だけでなく、
・凹凸が少なく、お掃除もしやすいため、
キッチンを綺麗&衛生的に保てます。
・段差がなく、お料理中にお鍋やボウル等を
一時的に置いておくスペースに使えます。
⇒給湯は省エネ性能の高いエコキュートを使用。
2023年(令和5年)に新規交換済です。
■リビングダイニングは最高天井高「約3.5m」
吹抜と勾配天井が開放感を生み出します!
⇒山奥のロッジやペンションを思わせる、
ゆとりの最高天井高と吹抜×勾配天井設計。
無垢材の内装が一層のゆとりを醸成します。
自然と家族が集まり、ゆったりと過ごす、
心まで温まる団欒空間に最適な構造設計です。
■キッチンはリビングを見渡せるカウンター型
&整流版付、スリムタイプのレンジフード
⇒リビングダイニングとの連続性を高めた
上部に吊戸棚の無いカウンターキッチン。
ご家族との会話が弾み、配膳もスムーズです。
お洒落カフェのようにお食事を楽しめます。
⇒戸建では稀少なスリムタイプのレンジフード
&ステンレスでスッキリとしたキッチン天板。
毎日のお料理も楽しくなるキッチンです。
⇒ビルトイン式食器洗浄乾燥機&オーブン付。
家事は時短して、大切なご家族との団欒や、
集中したい在宅勤務・趣味の時間へ。
■浴室はゆったり「160cm×160cmサイズ」
&窓から竹林を眺められるリラックス空間!
⇒疲れをゆったりと癒せるゆとりのサイズ感。
洗い場や浴槽に十分なスペースがあるため、
お子様と一緒のバスタイムにもお勧め。
⇒バスタブに浸かると、窓の外には竹林が。
まるで温泉宿の大浴場・露天風呂のように
落ち着いた緑を眺めながらご入浴を頂け、
更なるリラックス効果が期待できます。
また、周りからの視線を気にせずに、
窓を開けて入浴できるのも大きな魅力です。
■1階&2階の双方に温水洗浄式トイレあり!
⇒建物内のどこにいても階段を上り下りせず
トイレが使用でき、足腰への負担を軽減。
■ファミリーでの暮らしにも難なく対応!
随所に配された豊富な収納スペース
⇒1階・主寝室にはウォークインクローゼット。
扉がないため、開閉のスペースに邪魔されず
空間をフル活用して収納できるだけでなく、
ノーストレスでサッと衣類を取り出せます。
⇒2階・リビング横にはストレージスペース。
高さや奥行きのある物品も収納できるため、
生活感の出てしまう掃除用具の収納や、
キッチン周りのストック品置場等にも。
⇒可動式はしごで出入り可能な屋根裏ロフトは
頻繁には取り出さないレジャー用品や家電、
オフシーズンの季節物・衣類等の収納に最適。
使い方次第では、お子様の冒険心や遊び心を
掻き立てる「秘密基地」にもなりますね。
■来訪者から室内が見えづらいL字型の玄関動線
⇒急な来客や宅配便等があっても気兼ねしない、
生活感が伝わりづらい玄関~廊下の動線です。
■東側に公道&水路&南側隣地との間も水路有
接近性が少なく、採光を得やすい画地条件!
⇒東側・現況幅員:約5.9mの道路に面します。
対面地とは高低差が存するものの、
十分な距離が確保されており、朝~日中には
東側から明るい朝日が差し込む環境です。
⇒南側隣地との間には藤沢市管理の水路が存し、
個人所有地と直接境界を接していないため、
接近性が緩和されて南からの採光が得やすく
また権利関係のトラブル懸念も軽減できます。
■主要道路から奥まった立地で交通量が少なく
静か&安全性の高い住環境!
⇒前面道路は主要道路から側道へと入り込み、
交通量が限られる上、勾配があるため
スピードを出す車が少ない環境です。
■海近ながら水害リスクの低い高台立地!
⇒当物件の標高は約16.3m。
海まで1km圏内の、いわゆる海近物件ながら、
津波ハザードマップには該当しません。
(※藤沢市津波ハザードマップ参照)
安心して海沿い生活をお楽しみ頂けます。
■湘南モノレール「目白山下」駅まで徒歩2分
&計3駅3路線が利用可能なフレキシブル立地
⇒最寄りの「目白山下」駅は徒歩2分の近距離。
国内でも珍しい懸垂式のモノレールで、
海や眼下に広がる街並み・丘陵を眺めながら
ゆったりとお出掛けを楽しむことが出来ます。
⇒湘南のシンボル・江ノ電の「江ノ島」駅と
ショップの連なる「すばな通り」は徒歩9分。
江の島の海~鎌倉の名所旧跡を走り抜ける
レトロな車両で「非日常感のある日常」を。
⇒竜宮城を模した小田急「片瀬江ノ島」駅は、
藤沢・町田・新宿へと繋がる始発・終着駅。
駅までは徒歩17分と少し歩きますが、
その分、毎日座って通勤・通学ができます。
⇒藤沢市・鎌倉市を代表する3大ターミナル
「藤沢駅・大船駅・鎌倉駅」へ、
全て乗り換え無しでアクセスできる立地。
急な運休や遅延も他路線にてカバーでき、
フレキシブルな対応が叶います。
┏┓アクセス
┗□━━━━━━━━━━━━━━━━━
■湘南モノレール「目白山下」駅 徒歩2分
■江ノ島電鉄「江ノ島」駅 徒歩9分
■小田急江ノ島線「片瀬江ノ島」駅 徒歩17分
┏┓ライフインフォメーション
┗□━━━━━━━━━━━━━━━━━
■フレッシュストアヤオミネ
(現地より約720m・徒歩9分)
■やまか 江ノ島店
(現地より約750m・徒歩10分)
■はとりや(青果店)
(現地より約500m・徒歩7分)
■ハックドラッグ 江ノ島店
(現地より約800m・徒歩10分)
■ローソン 片瀬海岸一丁目店
(現地より約700m・徒歩9分)
■ヤマザキショップ 丸善店
(現地より約800m・徒歩10分)
■藤沢市立片瀬小学校
(現地より約850m・徒歩11分)
■藤沢市立片瀬中学校
(現地より約1000m・徒歩13分)
■藤沢市立片瀬市民センター
(現地より約480m・徒歩6分)
■横浜銀行 片瀬支店
(現地より約640m・徒歩8分)
■腰越海岸
(現地より約920m・徒歩12分)
■片瀬東浜海水浴場
(現地より約1100m・徒歩14分)
■片瀬山公園
(現地より約100m・徒歩2分)
■すばな通り
(現地より約720m・徒歩9分)
■江ノ島 ※江ノ島弁天橋
(現地より約1410m・徒歩18分)
■新江ノ島水族館
(現地より約1600m・徒歩20分)
------------------------------------------------
※注意1:
駅・施設からの距離は、社内システムを参照し、
80mにつき1分計算で入力しております。
実際の体感距離は必ずお客様ご自身でも
お確かめ頂きたく願います。
------------------------------------------------
担当者コメント
藤沢センター
小畑 元希 (おばた もとき)
誠にありがとうございます。
当物件を担当しております、
小畑 元希(おばた もとき)と申します。
ご見学のご希望、物件に関するご質問など
ございましたらお気軽にお問い合わせください。
ご連絡を心よりお待ちしております。
--------------------------------------------------
【野村の仲介+ 藤沢センター】
電話番号 :0466-27-5711
フリーコール:0120-182-238
【担当 小畑 元希(おばた もとき)】
直通携帯 :080-8145-7665
直通メール :m-obata@nomura-re.co.jp
--------------------------------------------------
特長・共用施設
物件の特徴の説明ハッシュタグをクリックすることで、同じハッシュタグを含む物件を検索できます。
物件について
| 部屋 | #天井高2.6M以上 #フローリング #ロフト #全居室フローリング |
|---|---|
| 収納 | #ウォークインクローゼット #屋根裏収納 #全居室収納 |
| キッチン | #カウンターキッチン #食器洗浄機 #IHクッキングヒーター #システムキッチン |
| 浴室・トイレ | #浴室に窓付き #オートバス #トイレ2ヶ所 #温水洗浄便座 |
| 設備 | #オール電化 #複層ガラス #省エネ給湯器 |
建物について
| 構造 | #注文住宅・ハウスメーカー施工 |
|---|---|
| セキュリティ | #TVモニタ付きインターフォン |
| その他 | #あんしん設備補修 #ホームクリーンアップ |
立地・周辺環境について
| 立地・環境 | #低層住居専用地域 #本下水 #駅徒歩5分以内 #2沿線以上利用可 #始発駅でらくらく通勤 #公園まで徒歩3分以内 #緑が見える #整形地 #海まで2km以内 #周辺交通量少なめ |
|---|
周辺施設
物件周辺の地図を確認する-

スーパー
フレッシュストアヤオミネ
現地より約720m
徒歩9分 -

スーパー
やまか 江ノ島店
現地より約750m
徒歩10分 -

ドラッグストア
ハックドラッグ 江ノ島店
現地より約800m
徒歩10分 -

コンビニ
ローソン 片瀬海岸一丁目店
現地より約700m
徒歩9分
物件の概要・詳細
物件情報の見方| 価格 | 5,380万円 住宅ローンシミュレーション | ||
|---|---|---|---|
| 物件番号 | F60BZ002 | ||
| 所在地 | 神奈川県藤沢市 片瀬3丁目 周辺地図を見る | ||
| 交通 |
湘南モノレール「目白山下」駅 徒歩2分 江ノ島電鉄「江ノ島」駅 徒歩9分 小田急江ノ島線「片瀬江ノ島」駅 徒歩17分 |
||
| 間取り | 3LDK | ||
|
建物面積
|
79.79m2(24.13坪)(公簿) 1階:39.74m2 2階:40.05m2 |
土地面積
| 100.15m2(30.29坪)(公簿) |
|
構造
|
木造2階建て | ||
| 築年月 | 2009年9月 | 駐車場 | あり |
|
土地権利
|
所有権 |
地目
|
宅地 |
|
私道負担
|
なし |
セットバック
|
― |
|
都市計画
|
市街化区域 |
用途地域
|
第一種低層住居専用地域 |
|
建ぺい率
|
40% |
容積率
|
80% |
|
接道状況
|
東5m公道 接面5.2m | ||
| 設備 | 公営水道・本下水・オール電化 | ||
| 現況 | 居住中 | 引 渡 | 相談 |
|
取引態様
|
仲介 |
国土法届出
|
不要 |
| 備 考 | ●都市計画法他制限 / 風致地区である、※敷地の一部が「土砂災害特別警戒区域」に該当 ※当物件と東側道路との間には水路(暗渠)があり、水路占用許可を受けて建築されています。 |
||
| 更新日 | 2026年2月1日 | 次回更新予定日 | 2026年2月15日 |
お問合せ店舗
同じエリアの中古一戸建て
-
新価格 1/31
藤沢市石川5丁目 一戸建
3,349万円
新価格
小田急江ノ島線「湘南台」駅 バス11分 (バス停 和泉橋) 徒歩5分
-
藤沢市辻堂東海岸2丁目戸建て
6,799万円
東海道本線(東京~熱海)「辻堂」駅 バス8分 (バス停 辻堂東海岸) 徒歩7分
-
藤沢市大鋸3丁目 一戸建
3,599万円
東海道本線(東京~熱海)「藤沢」駅 徒歩23分
-
藤沢市鵠沼橘1丁目 二世帯住宅
1億2,900万円
東海道本線(東京~熱海)「藤沢」駅 徒歩8分
-
藤沢市鵠沼藤が谷4丁目 一戸建
4,099万円
東海道本線(東京~熱海)「藤沢」駅 徒歩23分
同じエリアの新築一戸建て
-
NEW 2/1
藤沢市辻堂5丁目 新築戸建て
8,580万円
東海道本線(東京~熱海)「辻堂」駅 徒歩16分
3LDK / 土地 159.41m2
-
NEW 1/31
藤沢市本鵠沼4丁目 新築一戸建て
7,490万円
小田急江ノ島線「本鵠沼」駅 徒歩10分
2LDK+S / 土地 115.99m2
-
NEW 1/31
藤沢市本鵠沼4丁目 新築一戸建て
6,990万円
小田急江ノ島線「本鵠沼」駅 徒歩10分
2LDK+S / 土地 116.37m2
-
NEW 1/31
藤沢市本藤沢2丁目 新築一戸建て
5,999万円
小田急江ノ島線「藤沢本町」駅 徒歩18分
3LDK / 土地 120.51m2
-
NEW 1/31
藤沢市本藤沢2丁目 新築一戸建て
5,999万円
小田急江ノ島線「藤沢本町」駅 徒歩18分
4LDK / 土地 120.51m2
本掲載情報と現況に差異がある場合、現況を優先します。掲載物件は売却済あるいは売出中止となる場合もあります。掲載写真やパース(絵)、または間取図に描かれている家具や車などは、価格に含まれておりません。予めご了承ください。周辺施設や周辺環境の写真は、過去に撮影したものをそのまま利用している場合があり、名称・外観・背景等、実際のものとは異なる場合がございます。
仲介物件には所定の仲介手数料(消費税等相当額を含みます)が必要です。
売却もお任せください
ご所有不動産の売却をご検討なら、まずは無料査定から
投資用・事業用不動産サイト ノムコム・プロ

