横浜市磯子区栗木2丁目 戸建
-
4,500万円
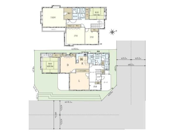
ローンシミュレーション - 間取り 6DK+S+2S
- 所在地 神奈川県横浜市磯子区 栗木2丁目
- 建物面積 197.11m2
- 土地面積 202.45m2
-
交通
京浜東北・根岸線「洋光台」駅 徒歩12分
京急本線「杉田」駅 徒歩18分 - 築年月 1990年11月
お問合せ
三井ハウス施工×開放角地。南側隣接地が栗木スポーツ広場の日差しと風が通る陽だまり邸宅。197m2のゆとり空間。
間取り図
- 3Dウォークスルー動画
※動画内に掲載の間取り図は現地で撮影した写真を基に作成しており、現状の間取り図とは相違している場合がございます。
動画内の家具・調度品等は販売価格に含まれておりません。
動画内の測定モードで表示される距離はおおよその数値です。正確には現地でご確認いただきますよう、お願いいたします。
ご利用のブラウザによっては、正しく動作しない場合がございます。ご利用環境について
0120-821-015
【通話無料・携帯もOK】
物件番号 F59BZ019
お問い合わせの際に、物件番号をお伝えいただくとスムーズです。
この物件のおすすめポイント
担当:島田までお気軽にお問い合わせください。
フリーコール:0120-821-015
担当者コメント
横浜支店
島田 大地 (しまだ りく)
お客様へ
洋光台エリアを徹底的に調べ上げ、
エリアと物件に精通した専属担当者が
ご案内させていただきます。
最良の物件を見極めるための必須情報である
土地・建物の特徴など物件の価値を正確にお伝えいたします。
その他、マーケット動向・金利情勢・税制度等
物件にまつわるご質問以外にも
お気軽にお問い合わせください。
★*;.。;*・゜・o○o*;.。..。;*・゜・o○o*;.。..。;*★
特長・共用施設
物件の特徴の説明ハッシュタグをクリックすることで、同じハッシュタグを含む物件を検索できます。
周辺施設
物件周辺の地図を確認する-

駅
JR京浜東北線・根岸線「洋光台」駅
現地より約940m
徒歩12分
物件の概要・詳細
物件情報の見方| 価格 | 4,500万円 住宅ローンシミュレーション | ||
|---|---|---|---|
| 物件番号 | F59BZ019 | ||
| 所在地 | 神奈川県横浜市磯子区 栗木2丁目 周辺地図を見る | ||
| 交通 |
京浜東北・根岸線「洋光台」駅 徒歩12分 京急本線「杉田」駅 徒歩18分 |
||
| 間取り | 6DK+S+2S | ||
|
建物面積
|
197.11m2(59.62坪) (車庫面積:18.78m2含) 1階:99.62m2 2階:97.49m2 |
土地面積
| 202.45m2(61.24坪)(公簿) |
|
構造
|
木造2階建て | ||
| 築年月 | 1990年11月 | 駐車場 | あり |
|
土地権利
|
所有権 |
地目
|
宅地 |
|
私道負担
|
なし |
セットバック
|
― |
|
都市計画
|
市街化区域 |
用途地域
|
第一種低層住居専用地域 |
|
建ぺい率
|
50% |
容積率
|
80% |
|
接道状況
|
北6.5m公道 接面8m・東6.5m公道 接面14.1m | ||
| 設備 | 公営水道・本下水・都市ガス | ||
| 現況 | 空家 | 引 渡 | 相談 |
|
取引態様
|
仲介 |
国土法届出
|
不要 |
| 備 考 | ●容積率1・2の補足 / 洋光台ハイタウン建築協定により、建蔽率、容積率緩和●都市計画法他制限 / 第1種高度地区 ※当建物は洋光台ハイタウン建築協定に基づき建築されたもので、協定廃止に伴い建替時には同規模の建物が再建築できない場合があります。 |
||
| 更新日 | 2026年3月12日 | 次回更新予定日 | 2026年3月26日 |
お問合せ店舗
同じエリアの中古一戸建て
-
新価格 3/15
磯子区森2丁目 中古戸建て
4,780万円
新価格
京浜東北・根岸線「磯子」駅 徒歩10分
-
横浜市磯子区森が丘2丁目戸建
4,980万円
京急本線「上大岡」駅 徒歩18分
-
横浜市磯子区森が丘2丁目 中古一戸建て
4,980万円
京急本線「屏風浦」駅 徒歩13分
-
磯子区杉田8丁目 中古戸建て
4,680万円
京急本線「京急富岡」駅 徒歩24分
-
磯子区滝頭1丁目 中古戸建て
2,580万円
京浜東北・根岸線「根岸」駅 バス20分 (バス停 脳卒中・神経脊椎センター) 徒歩5分
同じエリアの新築一戸建て
-
新価格 3/16
磯子区杉田7丁目 新築戸建て
5,599万円
新価格
京急本線「杉田」駅 徒歩19分
4LDK / 土地 153.12m2
-
磯子区杉田6丁目 新築戸建て
5,490万円
京急本線「杉田」駅 徒歩17分
4LDK / 土地 168.85m2
-
NEW 3/13
横浜市磯子区洋光台4丁目 新築一戸建て
7,690万円
根岸線「洋光台」駅 徒歩11分
4LDK / 土地 140.26m2
-
NEW 3/12
横浜市磯子区洋光台二丁目 新築戸建B号棟
6,788万円
京浜東北・根岸線「洋光台」駅 徒歩13分
4LDK / 土地 178.78m2
-
NEW 3/12
横浜市磯子区洋光台二丁目 新築戸建A号棟
7,088万円
京浜東北・根岸線「洋光台」駅 徒歩13分
4LDK / 土地 201.92m2
本掲載情報と現況に差異がある場合、現況を優先します。掲載物件は売却済あるいは売出中止となる場合もあります。掲載写真やパース(絵)、または間取図に描かれている家具や車などは、価格に含まれておりません。予めご了承ください。周辺施設や周辺環境の写真は、過去に撮影したものをそのまま利用している場合があり、名称・外観・背景等、実際のものとは異なる場合がございます。
仲介物件には所定の仲介手数料(消費税等相当額を含みます)が必要です。
京浜東北・根岸線の中古一戸建てを検索する
神奈川県横浜市磯子区中古一戸建て売却・査定
売却もお任せください
ご所有不動産の売却をご検討なら、まずは無料査定から
投資用・事業用不動産サイト ノムコム・プロ

