中古一戸建て
練馬区大泉学園町6丁目 中古一戸建て
お問合せ
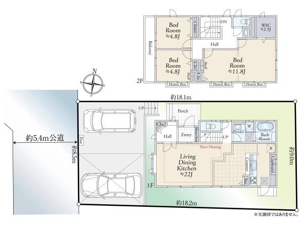
間取り図
0120-689-760
(通話無料・携帯もOK)
物件番号 BD570012
お問い合わせの際に、物件番号をお伝えいただくとスムーズです。
特長・共用施設
物件の特徴の説明ハッシュタグをクリックすることで、同じハッシュタグを含む物件を検索できます。
物件の概要・詳細
物件情報の見方| 価格 | 6,490万円 住宅ローンシミュレーション | ||
|---|---|---|---|
| 物件番号 | BD570012 | ||
| 所在地 | 東京都練馬区 大泉学園町6丁目 周辺地図を見る | ||
| 交通 |
西武池袋・豊島線「大泉学園」駅 バス15分 (バス停 大泉郵便局) 徒歩12分 東武東上線「成増」駅 バス30分 (バス停 大泉風致地区) 徒歩12分 |
||
| 間取り | 3LDK | ||
|
建物面積
|
110.36m2(33.38坪) |
土地面積
| 160.46m2(48.53坪)(公簿) |
|
構造
|
軽量鉄骨造2階建て | ||
| 築年月 | 2005年1月 | 駐車場 | あり |
|
土地権利
|
所有権 |
地目
|
宅地 |
|
私道負担
|
― |
セットバック
|
― |
|
都市計画
|
市街化区域 |
用途地域
|
第一種低層住居専用地域 |
|
建ぺい率
|
― |
容積率
|
― |
|
接道状況
|
西5.4m公道 | ||
| 設備 | ― | ||
| 現況 | 居住中 | 引 渡 | 相談 |
|
取引態様
|
仲介 |
国土法届出
|
不要 |
| 備 考 | □敷地面積の最低限度80m2、絶対高さ制限10m□風致地区:大泉□土地区画整理事業を施行すべき区域:練馬大泉石神井付近 / □間取り:3LDK+WIC / □車両は価格に含まれません □カースペース有、一部は屋根付カーポート(車種による制限有) □Sto.…収納、WIC…ウォークインクローゼット、Clo.…クローゼット □写真撮影/全て2025年8月 | ||
| 更新日 | 2025年10月24日 | 次回更新予定日 | 2025年11月7日 |
お問合せ店舗
同じエリアの中古一戸建て
-
NEW 10/23
練馬区東大泉2丁目 戸建
8,000万円
西武池袋・豊島線「大泉学園」駅 徒歩15分
-
新価格 10/20
練馬区貫井4丁目 中古戸建
7,480万円
新価格
西武池袋・豊島線「富士見台」駅 徒歩13分
-
新価格 10/20
練馬区西大泉3丁目中古戸建
4,780万円
新価格
西武池袋・豊島線「大泉学園」駅 徒歩14分
-
NEW 10/18
練馬区西大泉1丁目中古戸建
6,790万円
西武池袋・豊島線「保谷」駅 徒歩15分
-
NEW 10/18
練馬区大泉学園町4丁目中古戸建
5,490万円
西武池袋・豊島線「大泉学園」駅 バス14分 (バス停 大泉郵便局) 徒歩9分
同じエリアの新築一戸建て
-
新価格 10/24
練馬区東大泉7丁目 新築一戸建て
5,580万円
新価格
西武池袋・豊島線「大泉学園」駅 徒歩17分
3LDK / 土地 108.67m2
-
新価格 10/20
練馬区大泉町2丁目新築戸建(全5棟)・1号棟
5,880万円
新価格
西武池袋・豊島線「石神井公園」駅 バス16分 (平常時15分) (バス停 大泉町二丁目) 徒歩4分
4LDK / 土地 118.85m2
-
NEW 10/20
練馬区南大泉6丁目新築戸建
7,699万円
西武池袋・豊島線「保谷」駅 徒歩12分
3LDK+S / 土地 96.44m2
-
NEW 10/18
練馬区東大泉7丁目新築戸建
8,999万円
西武池袋・豊島線「大泉学園」駅 徒歩11分
2LDK+S / 土地 100.61m2
-
NEW 10/18
練馬区平和台2丁目新築戸建 C号棟
8,580万円
東京メトロ有楽町線「平和台」駅 徒歩10分
2LDK+2S / 土地 75.64m2
本掲載情報と現況に差異がある場合、現況を優先します。掲載物件は売却済あるいは売出中止となる場合もあります。掲載写真やパース(絵)、または間取図に描かれている家具や車などは、価格に含まれておりません。予めご了承ください。周辺施設や周辺環境の写真は、過去に撮影したものをそのまま利用している場合があり、名称・外観・背景等、実際のものとは異なる場合がございます。
仲介物件には所定の仲介手数料(消費税等相当額を含みます)が必要です。
西武池袋・豊島線の中古一戸建てを検索する
東京都練馬区中古一戸建て売却・査定
売却もお任せください
ご所有不動産の売却をご検討なら、まずは無料査定から
投資用・事業用不動産サイト ノムコム・プロ

