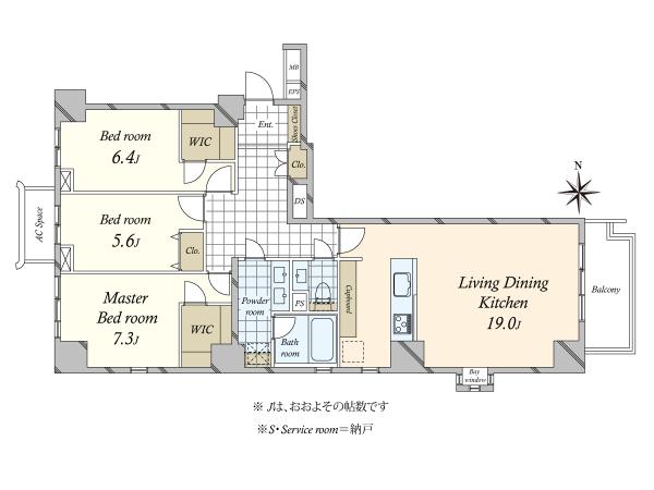
| Price | 378,000,000 JPY | Floor Plan | 3LDK+2WIC |
|---|---|---|---|
| Completion date | Jul-1985 | Floor | Level 8 of 14 story building 2 basement |
| Location | 4-chome Hiro Shibuya-ku Tokyo | Floor size | 92.75 sq.m. (998.35 sq.ft.) |
| Transportation |
Tokyo Metro Hibiya Line, Hiro. 5 min.-walk Toei Oedo Line, Roppongi. 20 min.-walk |
||
property ID
FF4C2003
For inquiries please click
Nomura Real Estate Solutions
REALIA Tokyo
+81-3-5114-5973
Office hours 9:30 to 18:10
Closed on Tuesdays, Wednesdays and certain Holidays
| Property Name | 広尾ガーデンヒルズ | ||
|---|---|---|---|
| Price | 378,000,000 JPY | Property Type | Apartment (Unit) |
| Floor Plan | 3LDK+2WIC | ||
| Floor size | 92.75 sq.m. (998.35 sq.ft.) (Center Line Of Wall) | ||
| Balcony Size | 4.75 sq.m. | Aspect(Balcony) | East |
| Others | - | ||
| Building structure | Steel-Reinforced Concrete / Level 8 of 14 story building (2 basement) | ||
| Completion date | Jul-1985 | Total number of houses | 1130 |
| Rights Concening Land | Ownership | Designated use of land | Category 2 Medium-To-High-Rise Exclusive Residential District |
| Property management company | 住友不動産建物サービス株式会社 | ||
| Management Type | Fully Consigned | Building superintendent | Daytime Only |
| Management Fee | 23,780 JPY / month | Repair reserve fund | 16,778 JPY / month |
| Other Expenses | 全体組合費 300 JPY / month, 共益費 3,160 JPY / month, ヒル棟別給湯料(基本料) 2,140 JPY / Month | ||
| Parking | - | ||
| Present condition | Vacant | Handover date | Upon Consultation |
| Transaction Type | Brokerage | Notification under National Land Use Planning Act | Not Required |
| Remarks |
●敷地面積 / 57466.8m2●分譲時会社 / 住友不動産株式会社●施工会社 / 清水建設株式会社、株式会社大林組、大成建設株式会社、鹿島建設株式会社、三菱建設株式会社●エレベーター / 有 ※専有駐車場付き ※室外機置場面積:2.13m2 ※共有持分:10,000,000分の7,096 ※WIC=ウォークインクローゼット |
||
| Last update: Mar. 30, 2026Next Update: Apr. 13, 2026 | ?About |
property ID
FF4C2003
For inquiries please click
Nomura Real Estate Solutions
REALIA Tokyo
+81-3-5114-5973



If there is any discrepancy between the actual condition of the premises and the information written on this site, the actual condition shall take precedence.
Please also note that the real estate property listed here may have already been sold or no longer be for sale.
Furniture and furnishings in the photographs are not included in the price.
Photographs of surrounding facilities and environment may have been taken some time in the past and thus names, background, appearance etc., may not correspond to the conditions at the present.
The designated brokerage fee (including consumption tax) will need to be paid to your real estate agent.
Brokerage. Licensed by Minister of Land,Infrastructure, Transport, and Tourism (6) 6101
Nomura Real Estate Solusions Co., Ltd.