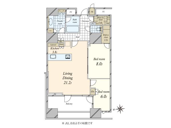
| Price | 653,000,000 JPY | Floor Plan | 2LDK+WIC+SIC+TR |
|---|---|---|---|
| Completion date | Dec-2024 | Floor | Level 6 of 14 story building 2 basement |
| Location | 1-chome Mita Minato-ku Tokyo | Floor size | 86.36 sq.m. (929.57 sq.ft.) |
| Transportation |
Toei Oedo Line, Azabu Juban. 7 min.-walk Tokyo Metro Nanboku Line, Azabujuban. 7 min.-walk |
||
property ID
FF4B9043
For inquiries please click
Nomura Real Estate Solutions
REALIA Tokyo
+81-3-5114-5973
Office hours 9:30 to 18:10
Closed on Tuesdays, Wednesdays and certain Holidays
| Property Name | 三田ガーデンヒルズ | ||
|---|---|---|---|
| Price | 653,000,000 JPY | Property Type | Apartment (Unit) |
| Floor Plan | 2LDK+WIC+SIC+TR | ||
| Floor size | 86.36 sq.m. (929.57 sq.ft.) (Center Line Of Wall) | ||
| Balcony Size | 10.98 sq.m. | Aspect(Balcony) | West |
| Others | trunk room 0.64 sq.m. | ||
| Building structure | Reinforced Concrete / Level 6 of 14 story building (2 basement) | ||
| Completion date | Dec-2024 | Total number of houses | 1002 |
| Rights Concening Land | Ownership | Designated use of land | Category 2 Residential District |
| Property management company | 三井不動産レジデンシャルサービス株式会社 | ||
| Management Type | Fully Consigned | Building superintendent | Daytime Only |
| Management Fee | 72,970 JPY / month | Repair reserve fund | 20,210 JPY / month |
| Other Expenses | インターネット使用料 1,430 JPY / month | ||
| Parking | - | ||
| Present condition | Vacant | Handover date | Upon Consultation |
| Transaction Type | Brokerage | Notification under National Land Use Planning Act | Not Required |
| Remarks |
●敷地面積 / 25246.5m2●分譲時会社 / 三井不動産レジデンシャル株式会社、三菱地所レジデンス株式会社●施工会社 / 大成建設株式会社 東京支店●設計会社 / 大成建設株式会社 一級建築士事務所 ●エレベーター / 有 ※専有面積にトランクルーム0.64m2を含みます。 |
||
| Last update: Dec. 16, 2025Next Update: Dec. 30, 2025 | ?About |
property ID
FF4B9043
For inquiries please click
Nomura Real Estate Solutions
REALIA Tokyo
+81-3-5114-5973



If there is any discrepancy between the actual condition of the premises and the information written on this site, the actual condition shall take precedence.
Please also note that the real estate property listed here may have already been sold or no longer be for sale.
Furniture and furnishings in the photographs are not included in the price.
Photographs of surrounding facilities and environment may have been taken some time in the past and thus names, background, appearance etc., may not correspond to the conditions at the present.
The designated brokerage fee (including consumption tax) will need to be paid to your real estate agent.
Brokerage. Licensed by Minister of Land,Infrastructure, Transport, and Tourism (5) 6101
Nomura Real Estate Solusions Co., Ltd.