| Price | 129,870,000 JPY | Gross Yield | -? |
|---|---|---|---|
| Floor size | 87.92 sq.m. (946.36 sq.ft.) | Floor | Level 10 of 12 story building 1 basement |
| Location | 1-chome Hiro Shibuya-ku Tokyo |
||
| Transportation |
Tokyo Metro Hibiya Line, Hiro. 9 min.-walk Yamanote Line, Ebisu. 10 min.-walk Tokyo Metro Hibiya Line, Ebisu. 12 min.-walk Shonan Shinjuku Line, Ebisu. 10 min.-walk |
||
| Property Name | 広尾マンション | ||
|---|---|---|---|
| Price | 129,870,000 JPY | Property Type | Apartment (Unit) |
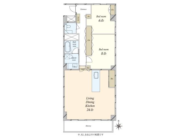
| Floor Plan | 2LDK | ||
| Floor size | 87.92 sq.m. (946.36 sq.ft.) (Center Line Of Wall) | ||
| Balcony Size | 9.3 sq.m. | Aspect(Balcony) | South (Corner room) |
| Others | trunk room 3.54 sq.m. | ||
| Building structure | Steel-Reinforced Concrete / Level 10 of 12 story building (1 basement) | ||
| Completion date | Jul-1970 | Total number of houses | 99 |
| Rights Concening Land | Ownership | Designated use of land | Category 1 Residential District / Commercial District |
| Property management company | アポロビルサービス株式会社 | ||
| Management Type | Fully Consigned | Building superintendent | Daytime Only |
| Management Fee | 18,699 JPY / month | Repair reserve fund | 21,426 JPY / month |
| Other Expenses | - | ||
| Parking | Lot Available: 20,000 JPY to 30,000 JPY / month (as of Jun. 2025) | ||
| Present condition | Vacant | Handover date | Upon Consultation |
| Transaction Type | Brokerage | Notification under National Land Use Planning Act | Not Required |
| Remarks |
●敷地面積 / 4109.7m2●分譲時会社 / 勧銀土地建物株式会社●施工会社 / 株式会社増岡組●設計会社 / 三菱地所株式会社 ●エレベーター / 有 |
||
| Last update: Nov. 15, 2025Next Update: Nov. 29, 2025 | ?About |
property ID
FD0BY003
For inquiries please click
Nomura Real Estate Solutions
International Sales Dept.
+81-3-3348-0150


Apartment (Whole Building)
| Price | ¥494,000,000 JPY |
|---|---|
| Gross Yield | 3.74% |
| Location | Shibuya-ku, Tokyo |

If there is any discrepancy between the actual condition of the premises and the information written on this site, the actual condition shall take precedence.
Please also note that the real estate property listed here may have already been sold or no longer be for sale.
Furniture and furnishings in the photographs are not included in the price.
Photographs of surrounding facilities and environment may have been taken some time in the past and thus names, background, appearance etc., may not correspond to the conditions at the present.
The designated brokerage fee (including consumption tax) will need to be paid to your real estate agent.
Brokerage. Licensed by Minister of Land,Infrastructure, Transport, and Tourism (5) 6101
Nomura Real Estate Solusions Co., Ltd.