| Price | 279,000,000 JPY | Gross Yield | 4.5%? |
|---|---|---|---|
| Total number of units | 9 | Net rentable area | To be confirmed |
| Building Size | 302.29 sq.m. (3253.81 sq.ft.) (Registered ) | Land Size | 102.24 sq.m. (1100.5 sq.ft.) (Actual Measurement) |
| Location | 2-chome Uenosakuragi Taito-ku Tokyo |
||
| Transportation |
Yamanote Line, Uguisudani. 9 min.-walk Yamanote Line, Nippori. 11 min.-walk Keihintohoku Line, Nippori. 11 min.-walk Tokyo Metro Chiyoda Line, Nezu. 11 min.-walk |
||
| Property Name | SG Prime | ||
|---|---|---|---|
| Price | 279,000,000 JPY | Property Type | Apartment (Whole Building) |
| Yield? | Gross Revenue(Year): 12,576,000 JPY / Gross Yield(Year): 4.5% | ||
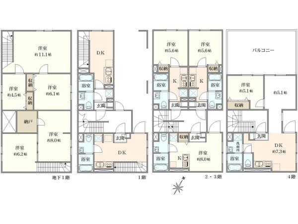
| Floor Plan | ― | ||
| Completion date | Oct-2023 | Building structure | Reinforced Concrete / Level - of 4 story building (1 basement) |
| Rights Concening Land | Ownership | Land classification | Residential |
| Charge for Use or Ownership of Private Road | 1.09sq.m. | Setback | completed |
| City Planning | Urbanization Promotion Area | Designated use of land | Category 1 Medium-To-High-Rise Exclusive Residential District / Neighborhood Commercial District |
| Building-land Ratio | 60% / 80% | Floor area ratio | 144% / 216%(Restriction(s) due to the road in front of the property) |
| Road(s) facing the property | Northwest 3.6m Private Road | ||
| Equipment | Public Water Supply / Sewage / Individual Propane Gas | ||
| Parking | Not Provied | ||
| Present condition | Renting | Handover date | Upon Consultation |
| Transaction Type | Brokerage | Notification under National Land Use Planning Act | Not Required |
| Remarks |
●都市計画法他制限 / 準防火地域、第3種高度地区 ※3DK・2SDK・2DK×各1戸、1K×各4戸、1R×2戸 ※【近隣商業地域】第三種高度地区、防火地域 ※土地面積:102.25m2(別途私道負担面積1.09m2有り) |
||
| Last update: Feb. 19, 2026Next Update: Mar. 5, 2026 | ?About |
property ID
F87C2018
For inquiries please click
Nomura Real Estate Solutions
International Sales Dept.
+81-3-6858-1759

Apartment (Whole Building)
| Price | ¥224,000,000 JPY |
|---|---|
| Gross Yield | 4.5% |
| Location | Taito-ku, Tokyo |


Apartment (Whole Building)
| Price | ¥378,000,000 JPY |
|---|---|
| Gross Yield | 4.13% |
| Location | Taito-ku, Tokyo |
If there is any discrepancy between the actual condition of the premises and the information written on this site, the actual condition shall take precedence.
Please also note that the real estate property listed here may have already been sold or no longer be for sale.
Furniture and furnishings in the photographs are not included in the price.
Photographs of surrounding facilities and environment may have been taken some time in the past and thus names, background, appearance etc., may not correspond to the conditions at the present.
The designated brokerage fee (including consumption tax) will need to be paid to your real estate agent.
Brokerage. Licensed by Minister of Land,Infrastructure, Transport, and Tourism (6) 6101
Nomura Real Estate Solusions Co., Ltd.