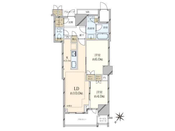
| Price | 172,000,000 JPY | Floor Plan | 2LDK+SIC |
|---|---|---|---|
| Completion date | Jan-2019 | Floor | Level 9 of 13 story building 1 basement |
| Location | Nihombashitomizawa-Cho Chuo-ku Tokyo | Floor size | 55.18 sq.m. (593.95 sq.ft.) |
| Transportation |
Tokyo Metro Hibiya Line, Ningyocho. 3 min.-walk Toei Asakusa Line, Higashi-nihombashi. 6 min.-walk Toei Shinjuku Line, Bakuroyokoyama. 6 min.-walk Tokyo Metro Hanzomon Line, Suitengumae. 8 min.-walk |
||
| Property Name | プラウド日本橋富沢町 | ||
|---|---|---|---|
| Price | 172,000,000 JPY | Property Type | Apartment (Unit) |
| Floor Plan | 2LDK+SIC | ||
| Floor size | 55.18 sq.m. (593.95 sq.ft.) (Center Line Of Wall) | ||
| Balcony Size | 5.75 sq.m. | Aspect(Balcony) | North-West |
| Others | trunk room 0.37 sq.m. | ||
| Building structure | Reinforced Concrete / Level 9 of 13 story building (1 basement) | ||
| Completion date | Jan-2019 | Total number of houses | 60 |
| Rights Concening Land | Ownership | Designated use of land | Commercial District |
| Property management company | 野村不動産パートナーズ株式会社 | ||
| Management Type | Fully Consigned | Building superintendent | Daytime Only |
| Management Fee | 17,900 JPY / month | Repair reserve fund | 14,990 JPY / month |
| Other Expenses | インターネット使用料 1,980 JPY / month, 町内会費 500 JPY / month | ||
| Parking | No Lot Available | ||
| Present condition | Vacant | Handover date | Upon Consultation |
| Transaction Type | Brokerage | Notification under National Land Use Planning Act | Not Required |
| Remarks |
●敷地面積 / 539m2●分譲時会社 / 野村不動産株式会社●施工会社 / 木内建設株式会社 ●設計会社 / 木内建設株式会社 一級建築士東京事務所 ●エレベーター / 有 ※専有面積:55.18m2に、トランクルーム面積:0.37m2を含みます。 |
||
| Last update: Feb. 15, 2026Next Update: Mar. 1, 2026 | ?About |
property ID
F87C2007
For inquiries please click
Nomura Real Estate Solutions
International Sales Dept.
+81-3-6858-1759



If there is any discrepancy between the actual condition of the premises and the information written on this site, the actual condition shall take precedence.
Please also note that the real estate property listed here may have already been sold or no longer be for sale.
Furniture and furnishings in the photographs are not included in the price.
Photographs of surrounding facilities and environment may have been taken some time in the past and thus names, background, appearance etc., may not correspond to the conditions at the present.
The designated brokerage fee (including consumption tax) will need to be paid to your real estate agent.
Brokerage. Licensed by Minister of Land,Infrastructure, Transport, and Tourism (6) 6101
Nomura Real Estate Solusions Co., Ltd.