| Price | 300,000,000 JPY | Gross Yield | 4.12%? |
|---|---|---|---|
| Building Size | 327.46 sq.m. (3524.74 sq.ft.) (Registered ) | Land Size | 214.72 sq.m. (2311.22 sq.ft.) (Registered) |
| Location | 4-chome Akatsutsumi Setagaya-ku Tokyo |
||
| Transportation |
Keio Line, Shimo-takaido. 4 min.-walk Tokyu Setagaya Line, Shimo-takaido. 4 min.-walk |
||
| Property Name | 世田谷区赤堤4丁目 賃貸併用住宅 | ||
|---|---|---|---|
| Price | 300,000,000 JPY | Property Type | Others |
| Yield? | Gross Revenue(Year): 12,384,000 JPY / Gross Yield(Year): 4.12% | ||
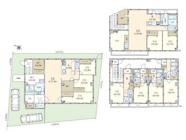
| Floor Plan | 3LDK+3S(1階)※各階備考欄参照 | ||
| Completion date | Mar-2002 | Building structure | Reinforced Concrete / Level - of 3 story building |
| Rights Concening Land | Ownership | Land classification | Residential |
| Charge for Use or Ownership of Private Road | none | Setback | - |
| City Planning | Urbanization Promotion Area | Designated use of land | Category 1 Low-Rise Exclusive Residential District |
| Building-land Ratio | 60% | Floor area ratio | 150% |
| Road(s) facing the property | North 4m Public Road: tangent 13.8m (Administrative Designation of Location of Road connecting to the Property) | ||
| Equipment | Public Water Supply / Sewage / Town Gas | ||
| Parking | Provided | ||
| Present condition | Residing | Handover date | Upon Consultation |
| Transaction Type | Brokerage | Notification under National Land Use Planning Act | Not Required |
| Remarks |
●都市計画法他制限 / 準防火地域、第1種高度地区 「想定収入」 ・1階:4,800,000円/年(3LDK+2S×+納戸) ※駐車場2台含む ・2階:3,624,000円/年(1K×4部屋) ※現在3/4部屋稼働中 ・3階:3,960,000円/年(3LDK+納戸) 合計:12,384,000円/年 ※1階および3階は現在居住中につき 賃貸に出した場合の想定賃料です また2階部分は満室稼働時の 想定賃料となります |
||
| Last update: Jan. 19, 2026Next Update: Feb. 2, 2026 | ?About |
property ID
F85BY005
For inquiries please click
Nomura Real Estate Solutions
International Sales Dept.
+81-3-6858-1759

Apartment (Whole Building)
| Price | ¥145,000,000 JPY |
|---|---|
| Gross Yield | 4.52% |
| Location | Setagaya-ku, Tokyo |


Apartment (Whole Building)
| Price | ¥500,000,000 JPY |
|---|---|
| Gross Yield | 3.34% |
| Location | Setagaya-ku, Tokyo |
If there is any discrepancy between the actual condition of the premises and the information written on this site, the actual condition shall take precedence.
Please also note that the real estate property listed here may have already been sold or no longer be for sale.
Furniture and furnishings in the photographs are not included in the price.
Photographs of surrounding facilities and environment may have been taken some time in the past and thus names, background, appearance etc., may not correspond to the conditions at the present.
The designated brokerage fee (including consumption tax) will need to be paid to your real estate agent.
Brokerage. Licensed by Minister of Land,Infrastructure, Transport, and Tourism (6) 6101
Nomura Real Estate Solusions Co., Ltd.