中古マンション
東京都新宿区内藤町|東京メトロ丸ノ内線「四谷三丁目」駅 徒歩7分、東京メトロ丸ノ内線「新宿御苑前」駅 徒歩7分
お気に入り物件に追加しました
お気に入りを削除しました
リノベーション済の中古マンション
6億4,800万円
|
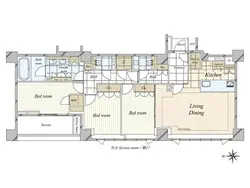
間取り
3LDK+WIC+SIC+S |
専有面積
112.14m2 |
所在階
10階 / 10階建 |
|
向き
西 |
築年月
2016年3月 |
総戸数
63戸 |
2026年2月上旬室内リフォーム完成済み
最上階・112.14m2 全居室から新宿御苑を望む眺望
外観
エントランス
リビング・ダイニング:※家具・調度品等は販売価格に含まれておりません 奥:洋室
リビング・ダイニング:奥:洋室
リビング・ダイニング
キッチン
バルコニー
バルコニー
リビング・ダイニング
浴室
洗面所
洋室
洋室
洋室
洋室
洋室
洋室
洋室
リビング・ダイニング:手前:洋室
洋室
ダイニングキッチン
ダイニングキッチン
キッチン
キッチン
ダイニングキッチン
トイレ
外観
外観
マンション表札
エントランス
外観
間取り図
エントランス
リビング・ダイニング:※家具・調度品等は販売価格に含まれておりません 奥:洋室
リビング・ダイニング:奥:洋室
リビング・ダイニング
キッチン
バルコニー
バルコニー
リビング・ダイニング
浴室
洗面所
洋室
洋室
洋室
洋室
洋室
洋室
洋室
リビング・ダイニング:手前:洋室
洋室
ダイニングキッチン
ダイニングキッチン
キッチン
キッチン
ダイニングキッチン
トイレ
外観
外観
マンション表札
エントランス
※動画内に掲載の間取り図は現地で撮影した写真を基に作成しており、現状の間取り図とは相違している場合がございます。
動画内の家具・調度品等は販売価格に含まれておりません。
動画内の測定モードで表示される距離はおおよその数値です。正確には現地でご確認いただきますよう、お願いいたします。
ご利用のブラウザによっては、正しく動作しない場合がございます。
野村不動産ソリューションズ株式会社 国土交通大臣免許(6)第6101号
●キッチン新規●浴室新規●洗面化粧台新規●洗濯パン新規
●便器新規●全室フローリング新規●トイレ床材新規
●洗面化粧室床材新規●全室クロス新規●全室建具新規●床暖房新規(LD)
━━━━━━━━━━━━━━━━━━━━━━━━━━━━━━━━━━━━━━━
~最上階・17m2超のワイドスパン、全居室から新宿御苑を望む眺望~
《 ジオ御苑内藤町 》
~内藤家 中屋敷跡地、
新宿御苑と息を合わせる場所~
━━━━━━━━━━━━━━━━━━━━━━━━━━━━━━━━━━━━━━━
┏┓ REFORM ー2026年2月上旬室内リフォーム完成済みー
┗□━━━━━━━━━━━━━━━━━━━━━━━━━━━
ー工事内容ー
■天井・壁クロス貼替
■フローリング新規張替え
■床タイル新規交換
■キッチン新規交換
■洗面化粧台新規交換
■便器新規交換
■トイレ手洗い新規交換
■システムバス新規交換
■室内ドア新規交換
■洗濯防水パン新規交換
■エアコン新規交換(LD・洋室1・2・3)
■床暖房新規交換(LD)
■給湯器新規交換
┏┓MANSION
┗□━━━━━━━━━━━━━━━━━━━━━━━━━━━━━━━━━━━━━━
■阪急不動産旧分譲「ジオ」シリーズ
■新宿御苑・神宮外苑・赤坂御用地の
3つの杜に囲まれた自然豊かな都心部での生活
■暮らしの安全を24時間見守る、セキュリティシステム
24時間遠隔監視システム、玄関前カメラ付きドアホン、キーエントリーシステム
監視カメラ、防犯センサー、鎌デッド錠、トリプルオートロック等
■より耐震性の高い「杭基礎」構造
■不在時にも大切なお荷物を受け取れる宅配ボックス有
■24時間ゴミ出し可能
■大切なペットと暮らせます(細則有)
┏┓ROOM
┗□━━━━━━━━━━━━━━━━━━━━━━━━━━━━━━━━━━━━━━
■専有面積:112.14m2
■間取り:3LDK+WIC+SIC
■最上階10階部分+全居室から新宿御苑の緑を望む眺望
■17m2超のワイドスパン、緑の借景と解放感のある室内
■約4.0帖の広々としたカウンターキッチン
食器洗浄機能、ディスポーザー、浄水器一体型水栓
■家具の配置がしやすい整形の間取り
■各居室の収納部あり
■プライバシー性の高いクランクイン玄関
■トイレに手洗いカウンターあり
■断熱性の高いLow-E複層ガラス使用
┏┓ ACCESS
┗□━━━━━━━━━━━━━━━━━━━━━━━━━━━
< 3駅4路線利用可能 >
■東京メトロ丸ノ内線「四谷三丁目」駅 徒歩7分
■東京メトロ丸ノ内線「新宿御苑前」駅 徒歩8分
■都営大江戸線「国立競技場」駅 徒歩10分
■JR中央・総武線「千駄ヶ谷」駅 徒歩11分
┏┓ LIFE INFORMATION
┗□━━━━━━━━━━━━━━━━━━━━━━━━━━━━━━━━━━━━━━
< 買い物施設 >
・ミニストップ新宿大京町・・・・・・・徒歩1分(約70m)
・ファミリーマート四谷四丁目店・・・・徒歩3分(約180m)
・まいばすけっと新宿外苑西通り店・・・徒歩4分(約280m)
・まいばすけっと四谷四丁目店・・・・・徒歩6分(約410m)
< 病院 >
・慶應義塾大学病院・・・・・・・・・・徒歩10分(約790m)
< 教育施設 >
・四谷小学校・・・・・・・・・・・・・徒歩9分(約520m)
・四谷中学校・・・・・・・・・・・・・徒歩22分(約1700m)
< その他 >
・新宿御苑・・・・・・・・・・・・・・徒歩14分(約1100m)
※地図上に表示されるアイコンは、実際の所在地とは異なる場合があります。
| 南向き(南東・南西含む) | 主要採光面が南(南東・南西)向きの物件 |
|---|---|
| 角部屋 | マンション内の角部屋の物件 |
| 最上階 | マンション内の最上階の物件 |
| 20階以上の部屋 | 所在階が20階以上 |
| 南向き | 主要採光面が概ね南向きの物件 |
| 南東向き | 主要採光面が概ね南東向きの物件 |
| 南西向き | 主要採光面が概ね南西向きの物件 |
| プレミアムフロア | 他フロアと比べ設備のグレードが高いフロアに位置する物件 |
| リビング・ダイニング15畳以上 | リビングとダイニングの広さが合計15畳以上 |
|---|---|
| リビング・ダイニング20畳以上 | リビングとダイニングの広さが合計20畳以上 |
| 主寝室10畳以上 | 主寝室(ベッドルーム)が10畳以上 |
| 天井高2.6m以上 | リビングまたは居室の一部の天井の高さが2.6m以上 |
| フローリング | リビングまたは居室の一部の床がフローリングになっている物件 |
| 和室 | 和室がある物件 |
| LL45以上 | 床のフローリングの防音材がLL45以上 |
| バリアフリー | 建築的な障壁・障害(バリアー)の解消に配慮された箇所のある物件 |
| ロフト | 部屋の一部が2層式になっているスペースがある物件 |
| 全室南向き | 全ての居室の主要採光面が概ね南向きである物件 |
| 全室2面採光 | 全ての居室に2方向の採光面がある物件 |
| 3面採光 | 3方向に採光面がある |
| 全室南東向き | 全ての居室の主要採光面が概ね南東向きの物件 |
| 全室南西向き | 全ての居室の主要採光面が概ね南西向きの物件 |
| 全居室フローリング | 全ての居室の床がフローリングの物件 |
| 納戸 | 法的に居室扱いにならない収納部屋のある物件 |
|---|---|
| ウォークインクローゼット | 歩いて中に入れる収納スペースがある物件 |
| シューズインクローゼット | 内部に歩いて入ることができる靴収納スペースがある物件 |
| 床下収納 | 床下部分に収納スペースがある物件 |
| 屋根裏収納 | 屋根裏に収納スペースがある物件 |
| 全居室収納 | 全ての居室に収納スペース(押入れ・クローゼット)がある物件 |
| カウンターキッチン | キッチンとダイニングを仕切る部分がカウンターになっている物件 |
|---|---|
| キッチンに窓付き | キッチンに窓がある物件 |
| ディスポーザー | 生ゴミを粉砕して下水へ流せる処理機がある物件 |
| 食器洗浄機 | 食器洗浄機がある物件 |
| 浄水器 | 浄水器がある物件 |
| IHクッキングヒーター | IHクッキングヒーターがある物件 |
| システムキッチン | システムキッチンの物件 |
| アイランドキッチン | アイランドキッチンの物件 |
| パントリー(食器・食品の収納庫) | 食品等を収納するための部屋や大型の収納スペースがある物件 |
| 浴室に窓付き | 浴室に窓がついている物件 |
|---|---|
| ビューバス | 窓付きの浴室から眺望を楽しめる物件 |
| 浴室乾燥機 | 浴室乾燥機がある物件 |
| 追いだき機能 | 浴槽に追いだき機能がついている物件 |
| 浴室1.4×1.8m以上 | 浴室のユニットサイズが1.4m×1.8m以上の物件 |
| 浴室1.6×2.0m以上 | 浴室のユニットサイズが1.6m×2.0m以上の物件 |
| トイレに窓付き | トイレに窓がついている物件 |
| TV付浴室 | 浴室にテレビが設置されている物件 |
| ジェットバス | 浴槽にジェットバスが設置されている物件 |
| オートバス | オートバス(スイッチの操作で浴槽への湯張り、追い焚き、温度調整などができる)つきの物件 |
| ミストサウナ | ミストサウナがある物件 |
| 露天風呂 | 露天風呂施設がある物件 |
| トイレ2ヶ所 | トイレが2か所以上ある物件 |
| 温水洗浄便座 | トイレに温水洗浄便座がついている物件 |
| シャワー付洗面化粧台 | 洗面化粧台にハンドシャワーがついている物件 |
| ルーフバルコニー | 階下の住居の屋根部分を利用したバルコニーがある物件 |
|---|---|
| 2面バルコニー | 住居の外壁に2面バルコニーがある物件 |
| 両面バルコニー | 住居の外壁に両側にバルコニーがある物件 |
| 3面バルコニー | 住居の外壁に3面バルコニーがある物件 |
| ワイドバルコニー | バルコニーの奥行きが2m以上の物件 |
| スロップシンク | バルコニーやポーチなどに流しがある物件 |
| バルコニー・屋上に水栓あり | バルコニー・屋上に水栓がある物件 |
| 専用庭 | マンションで主に1階の居住者だけが専用で使用できる庭がある物件 |
|---|---|
| テラス | ダイニングやリビングから直接出入りができるスペースがある物件 |
| 専用ポーチ付 | 玄関ドアまでのスペースに専用ポーチがある物件 |
| 床暖房 | リビングまたはダイニングなどの床に組み込んだ暖房システムがある物件 |
| オール電化 | 住戸内のすべてのエネルギー源が電気になっている物件 |
| 都市ガス | 都市ガスが整備されている物件 |
| 太陽光発電システム | 共用部分に太陽光発電システムが設置されている物件 |
| 複層ガラス | 窓ガラスが複層になっている物件 |
| 24時間換気システム | 24時間換気する設備がある物件 |
| CATV | ケーブルテレビ(CATV)利用可 |
| 高速ネット対応 | 光回線、CATVの通信回線が設置されている物件 |
| 省エネ給湯器 | 省エネ給湯器がついている物件 |
| メゾネット | 住居内が2層に分かれていて、内階段で繋がっているもの。 |
|---|---|
| ワイドスパン8m以上 | 間口が8m以上ある広い間取りのこと。 |
| 二重床 | スラブと内装床を離して仕上げた箇所がある物件 |
| 二重天井 | スラブと内装天井を離して仕上げた箇所がある物件 |
| 免震or制震構造 | 免震または制震装置のある構造の物件 |
|---|---|
| スケルトンインフィル | 建物の構造と内装・設備を分離して設計された物件 |
| 外断熱 | 建物の外側に断熱層を設けた物件 |
| 外壁タイル貼り | 建物の外壁がタイル貼りの物件 |
| タワー(20階建て以上) | 20階以上のタワー型マンション |
| 大規模マンション(200戸以上) | 200戸以上の大規模マンション |
| 低層マンション(3階建以下) | 3階建て以下の低層マンション |
| デザイナーズマンション | 建築家のコンセプトが前面に表れた個性的なマンション |
| 宅配ボックス | 不在時の荷物受け取りに便利な宅配ボックス付き |
|---|---|
| トランクルーム | マンション建物内にトランクルームがある物件 |
| 24時間ゴミ出し可 | 24時間ゴミ出しが可能な施設がある物件 |
| コンシェルジュサービス | さまざまなサービスを利用できるコンシェルジュがいる物件 |
| バレーパーキングサービス | 係員が駐車を代行するサービスがある物件 |
| 管理員常駐 | 管理員の常駐している物件 |
| 24時間有人管理 | 管理員や警備員が24時間有人で管理している物件 |
| ペット用設備 | ペット専用の設備がある物件 |
| シアタールームパーティールームあり | 共用施設にシアタールームまたはパーティールームがある物件 |
| キッズルーム | 共用施設にキッズ専用ルームがある物件 |
| 託児所or保育所あり(利用可能か確認要) | マンション敷地内に託児所or保育園がある物件 (居住者の通園が優先されないケースや年齢制限・定員オーバー・撤退予定その他によりご入居時またはご入居後にご利用できない可能性があります。詳しくは担当者にご確認ください。) |
| フィットネス設備 | 共用施設にフィットネス設備がある物件 |
| ゲストルーム(宿泊施設)あり | 共用施設にゲスト用の宿泊施設がある物件 |
| バーラウンジあり | 共用施設にバーラウンジがある物件 |
| 入浴(温泉)施設あり | 共用施設に入浴設備がある物件 |
| 敷地内に公園がある | マンションの敷地内に公園がある物件 |
| ペット可(規約制限あり) | ペット飼育可(規約制限あり |
| プールあり | プールがある物件 |
| エレベータ | エレベータがある物件 |
| オートロック | オートロックの設備がある物件 |
|---|---|
| TVモニター付インターフォン | TVモニターつきインターフォンがある物件 |
| ディンプルキー | キーがディンプルキーになっている物件 |
| 24時間セキュリティ | 警備員またはシステムにより24時間のセキュリティ体制になっている物件 |
| ホームセキュリティ | 防犯システムがある物件 |
| 防犯カメラ | 共用部分に防犯カメラがある物件 |
| セキュリティ充実 | セキュリティが充実している物件 |
| 駐車場空有 | 敷地内駐車場に空きがある物件 |
|---|---|
| 100%駐車場 | 各世帯に1台以上駐車場が用意されている物件 |
| 地下駐車場 | 建物の地下に駐車場がある物件 |
| 自走式駐車場 | 車を運転して出入りができる自走式駐車場がある物件 |
| 駐輪場 | 駐輪場がある物件 |
| バイク置場 | バイク置き場がある物件 |
| 平面駐車場 | 運転して出入りできる駐車場が敷地内の平面にある物件 |
| 平面駐車場(専用使用権) | 平面駐車場の専用使用権がある物件 |
| 機械式駐車場(専用使用権) | 機械式駐車場の専用使用権がある物件 |
| EV車充電設備 | EV車等の充電装置が駐車場や駐車スペースに設置されている物件 |
| あんしん設備補修 | 検査・補修サービスつきの物件 詳細はこちら |
|---|---|
| ホームステージングサービス | ホームステージング実施物件 詳細はこちら |
| 認定保証中古物件 | 認定保証中古制度適用物件 詳細はこちら |
| リフォーム | リビングまたは居室などの一部の内装がリフォームされている、またはリフォーム予定の物件 |
| まだまだ新しい築3年以内 | 築年3年以内の物件 |
| 住宅性能評価取得済み | 住宅性能評価取得済みの物件 |
| 事務所使用可 | 住居用のみではなく事務所としても使用可能な物件 |
| 野村不動産旧分譲マンション | 野村不動産が分譲したマンション |
| ホームクリーンアップ | ホームクリーンアップ実施物件 詳細はこちら |
| 低層住居専用地域 | 第一種もしくは第二種低層住居専用地域内 |
|---|---|
| 駅徒歩5分以内 | 最寄駅まで徒歩5分以内の物件 |
| 2沿線以上利用可 | 2沿線以上利用可能な物件 |
| 始発駅でらくらく通勤 | 最寄駅が始発駅の物件 |
| 小学校まで徒歩5分以内 | 小学校まで徒歩5分以内の物件 |
| スーパーまで徒歩5分以内 | スーパーまで徒歩5分以内の物件 |
| コンビニまで徒歩3分以内 | コンビニまで徒歩3分以内の物件 |
| 公園まで徒歩3分以内 | 公園まで徒歩3分以内の物件 |
| スカイツリーが見える | 物件からスカイツリーが見える(天候によります) |
| 東京タワーが見える | 物件から東京タワーが見える(天候によります) |
| 富士山が見える | 物件から富士山が見える(天候によります) |
| 海が見える | 物件から海が見える(天候によります) |
| 緑が見える | 物件から庭・街路樹・公園・皇居・大使館などの木々が見える |
| 公園が見える | 物件から公園が見える |
| 皇居が見える | 物件から皇居が見える |
| 花火が見える | 物件から花火が見える(時期・天候によります) |
| 高台に立地 | 高台に立地している物件 |
| 前面棟無 | 主要開口部の前に日照や眺望を遮るような建物がない物件 |
| 大型タウン内 | 分譲時の総計画数が200戸(区画)以上の大規模タウン内に所在している物件 |
| 海まで2km以内 | 海までの道路距離が2㎞以内の物件 |
| 眺望良好 | 主要開口部の前に構造物が存在せず、眺望の良い物件 |
| 周辺交通量少なめ | 前面道路や周辺道路の交通量が少ない物件 |
| 整備された歩道 | 前面道路や周辺道路に、歩道が整備されている物件 |
| 陽当り良好 | 陽当たり良好な物件 |
| 南向き | 主要採光面が概ね南向きの物件 |
|---|---|
| 南東向き | 主要採光面が概ね南東向きの物件 |
| 南西向き | 主要採光面が概ね南西向きの物件 |
| リビング・ダイニング15畳以上 | リビングとダイニングの広さが合計15畳以上 |
|---|---|
| リビング・ダイニング20畳以上 | リビングとダイニングの広さが合計20畳以上 |
| 天井高2.6m以上 | リビングまたは居室の一部の天井の高さが2.6m以上 |
| フローリング | リビングまたは居室の一部の床がフローリングになっている物件 |
| 和室 | 和室がある物件 |
| バリアフリー | 建築的な障壁・障害(バリアー)がない物件 |
| ロフト | 部屋の一部が2層式になっているスペースがある物件 |
| 全室南向き | 全ての居室の主要採光面が概ね南向きである物件 |
| 全室2面採光 | 全ての居室に2方向の採光面がある物件 |
| 3面採光 | 3方向に採光面がある |
| 全室南東向き | 全ての居室の主要採光面が概ね南東向きの物件 |
| 全室南西向き | 全ての居室の主要採光面が概ね南西向きの物件 |
| 全居室フローリング | 全ての居室の床がフローリングの物件 |
| 納戸 | 法的に居室扱いにならない収納部屋のある物件 |
|---|---|
| ウォークインクローゼット | 歩いて中に入れる収納スペースがある物件 |
| シューズインクローゼット | 内部に歩いて入ることができる靴収納スペースがある物件 |
| 床下収納 | 床下部分に収納スペースがある物件 |
| 屋根裏収納 | 屋根裏に収納スペースがある物件 |
| 全居室収納 | 全ての居室に収納スペース(押入れ・クローゼット)がある物件 |
| カウンターキッチン | キッチンとダイニングを仕切る部分がカウンターになっている物件 |
|---|---|
| ディスポーザー | 生ゴミを粉砕して下水へ流せる処理機がある物件 |
| 食器洗浄機 | 食器洗浄機がある物件 |
| 浄水器 | 浄水器がある物件 |
| IHクッキングヒーター | IHクッキングヒーターがある物件 |
| システムキッチン | システムキッチンの物件 |
| アイランドキッチン | アイランドキッチンの物件 |
| パントリー(食器・食品の収納庫) | 食品等を収納するための部屋や大型の収納スペースがある物件 |
| 浴室に窓付き | 浴室に窓がついている物件 |
|---|---|
| ビューバス | 窓付きの浴室から眺望を楽しめる物件 |
| 浴室乾燥機 | 浴室乾燥機がある物件 |
| 追いだき機能 | 浴槽に追いだき機能がついている物件 |
| 浴室1.6×2.0m以上 | 浴室のユニットサイズが1.6m×2.0m以上の物件 |
| TV付浴室 | 浴室にテレビが設置されている物件 |
| ジェットバス | 浴槽にジェットバスが設置されている物件 |
| オートバス | オートバス(スイッチの操作で浴槽への湯張り、追い焚き、温度調整などができる)つきの物件 |
| ミストサウナ | ミストサウナがある物件 |
| 露天風呂 | 露天風呂施設がある物件 |
| トイレ2ヶ所 | トイレが2か所以上ある物件 |
| 温水洗浄便座 | トイレに温水洗浄便座がついている物件 |
| シャワー付洗面化粧台 | 洗面化粧台にハンドシャワーがついている物件 |
| バルコニー・屋上に水栓あり | バルコニー・屋上に水栓がある物件 |
|---|
| 床暖房 | リビングまたはダイニングなどの床に組み込んだ暖房システムがある物件 |
|---|---|
| オール電化 | 住戸内のすべてのエネルギー源が電気になっている物件 |
| 都市ガス | 都市ガスが整備されている物件 |
| 太陽光発電システム | 共用部分に太陽光発電システムが設置されている物件 |
| 複層ガラス | 窓ガラスが複層になっている物件 |
| 24時間換気システム | 24時間換気する設備がある物件 |
| CATV | ケーブルテレビ(CATV)利用可 |
| 高速ネット対応 | 光回線、CATVの通信回線が設置されている物件 |
| 省エネ給湯器 | 省エネ給湯器がついている物件 |
| 免震or制震構造 | 免震または制震装置のある構造の物件 |
|---|---|
| 外断熱 | 建物の外側に断熱層を設けた物件 |
| 屋上付 | 建物に屋上がついている物件 |
| 注文住宅ハウスメーカー施工 | 間取りや設備など施主の注文により建てられた物件 |
| ログハウス | 丸太を組んで造られた建物 |
| TVモニター付インターフォン | TVモニターつきインターフォンがある物件 |
|---|---|
| ホームセキュリティ | 防犯システムがある物件 |
| セキュリティ充実 | セキュリティが充実している物件 |
| ビルトインガレージ | 住宅に組み込まれた車庫がある物件 |
|---|---|
| 地下車庫 | 地下に車庫がある物件 |
| 駐車場2台以上 | 車種により2台以上駐車可能な駐車場がある物件 |
| EV車充電設備 | EV車等の充電装置が駐車場や駐車スペースに設置されている物件 |
| あんしん建物補修 | 検査・補修サービスつきの物件 詳細はこちら |
|---|---|
| あんしん設備補修 | 検査・補修サービスつきの物件 詳細はこちら |
| ホームステージングサービス | ホームステージング実施物件 詳細はこちら |
| 認定保証中古物件 | 認定保証中古制度適用物件 詳細はこちら |
| 完成済み | 完成済みですぐに入居が可能な物件(※代金支払い後) |
| リフォーム | リビングまたは居室などの一部の内装がリフォームされている、またはリフォーム予定の物件 |
| まだまだ新しい築3年以内 | 築年3年以内の物件 |
| 住宅性能評価取得済み | 住宅性能評価取得済みの物件 |
| 建物調査済み | 専門家による建物調査が済んでいるもの。 |
| 二世帯向け | 居室が4以上、トイレ・キッチンが2以上、浴室が1以上あるもの。 |
| 野村不動旧分譲地 | 野村不動産の旧分譲地内 |
| ホームクリーンアップ | ホームクリーンアップ実施物件 詳細はこちら |
| 角地 | 2つ以上の道路に囲まれた区画の土地 |
|---|---|
| 南道路(南東・南西含む) | 前面道路が南(南東・南西)側道路 |
| 低層住居専用地域 | 第一種もしくは第二種低層住居専用地域内 |
| 分譲地内 | 宅地開発された住宅地にある物件 |
| 南ひな壇 | 南側に傾斜した日当たりの良い住宅地 |
| 容積率100%以上 | 容積率が100%以上の物件 |
| 本下水 | 公共下水が完備されている物件 |
| 駅徒歩5分以内 | 最寄駅まで徒歩5分以内の物件 |
| 2沿線以上利用可 | 2沿線以上利用可能な物件 |
| 始発駅でらくらく通勤 | 最寄駅が始発駅の物件 |
| 小学校まで徒歩5分以内 | 小学校まで徒歩5分以内の物件 |
| スーパーまで徒歩5分以内 | スーパーまで徒歩5分以内の物件 |
| コンビニまで徒歩3分以内 | コンビニまで徒歩3分以内の物件 |
| 公園まで徒歩3分以内 | 公園まで徒歩3分以内の物件 |
| スカイツリーが見える | 物件からスカイツリーが見える(天候によります) |
| 東京タワーが見える | 物件から東京タワーが見える(天候によります) |
| 富士山が見える | 物件から富士山が見える(天候によります) |
| 海が見える | 物件から海が見える(天候によります) |
| 緑が見える | 物件から庭・街路樹・公園・皇居・大使館などの木々が見える |
| 公園が見える | 物件から公園が見える |
| 皇居が見える | 物件から皇居が見える |
| 花火が見える | 物件から花火が見える(時期・天候によります) |
| 高台に立地 | 高台に立地している物件 |
| 整形地 | 土地の形状が正方形や長方形の物件 |
| 前面棟無 | 主要開口部の前に日照や眺望を遮るような建物がない物件 |
| 大型タウン内 | 分譲時の総計画数が200戸(区画)以上の大規模タウン内に所在している物件 |
| 地盤調査済 | 構造物を立てる際に必要な地盤の調査が住んでいる物件 |
| 海まで2km以内 | 海までの道路距離が2㎞以内の物件 |
| 眺望良好 | 主要開口部の前に構造物が存在せず、眺望の良い物件 |
| 周辺交通量少なめ | 前面道路や周辺道路の交通量が少ない物件 |
| 整備された歩道 | 前面道路や周辺道路に、歩道が整備されている物件 |
| 陽当り良好 | 陽当たり良好な物件 |
| あんしん土地診断 | 検査・埋設物撤去サービスつきの物件 埋設物撤去 土地測量 |
|---|---|
| セキュリティ充実 | セキュリティが充実している物件 |
| 野村不動産旧分譲地 | 野村不動産の旧分譲地内 |
| 建築条件なし | 建築条件がない土地 |
| 分割可 | 分割することが可能な土地 |
| 更地 | 現況が更地となっている土地 |
| 角地 | 2つ以上の道路に囲まれた区画の土地 |
| 南道路(南東・南西含む) | 前面道路が南(南東・南西)側道路 |
| 低層住居専用地域 | 第一種もしくは第二種低層住居専用地域内 |
| 分譲地内 | 宅地開発された住宅地にある物件 |
| 南ひな壇 | 南側に傾斜した日当たりの良い住宅地 |
| 容積率100%以上 | 容積率が100%以上の物件 |
| 都市ガス | 都市ガスが利用可能な土地 |
| 本下水 | 公共下水が完備されている物件 |
| 駅徒歩5分以内 | 最寄駅まで徒歩5分以内の物件 |
| 2沿線以上利用可 | 2沿線以上利用可能な物件 |
| 始発駅でらくらく通勤 | 最寄駅が始発駅の物件 |
| 小学校まで徒歩5分以内 | 小学校まで徒歩5分以内の物件 |
| スーパーまで徒歩5分以内 | スーパーまで徒歩5分以内の物件 |
| コンビニまで徒歩3分以内 | コンビニまで徒歩3分以内の物件 |
| 公園まで徒歩3分以内 | 公園まで徒歩3分以内の物件 |
| 高台に立地 | 高台に立地している物件 |
| 整形地 | 土地の形状が正方形や長方形の物件 |
| 前面棟無 | 主要開口部の前に日照や眺望を遮るような建物がない物件 |
| 大型タウン内 | 分譲時の総計画数が200戸(区画)以上の大規模タウン内に所在している物件 |
| 地盤調査済 | 構造物を立てる際に必要な地盤の調査が住んでいる物件 |
| 海まで2km以内 | 海までの道路距離が2㎞以内の物件 |
| 眺望良好 | 主要開口部の前に構造物が存在せず、眺望の良い物件 |
| 周辺交通量少なめ | 前面道路や周辺道路の交通量が少ない物件 |
| 整備された歩道 | 前面道路や周辺道路に、歩道が整備されている物件 |
| 陽当り良好 | 陽当たり良好な物件 |
| 位置 | #最上階 |
|---|---|
| 部屋 | #リビング・ダイニング15畳以上 #フローリング #LL45以上 |
| 収納 | #納戸 #ウォークインクローゼット #シューズインクローゼット |
| キッチン | #カウンターキッチン #ディスポーザー #食器洗浄機 #浄水器 #システムキッチン |
| 浴室・トイレ | #浴室乾燥機 #追いだき機能 #浴室1.6-2.0M以上 #ジェットバス #トイレ2ヶ所 #温水洗浄便座 |
| 設備 | #床暖房 #都市ガス #複層ガラス |
| 施設・サービス | #宅配ボックス #トランクルーム #ペット可(規約制限あり) #エレベータ |
|---|---|
| セキュリティ | #オートロック #TVモニタ付きインターフォン #ディンプルキー |
| その他 | #野村不動産のリノベーションマンション #リフォーム |
| 価格 | 物件の代金総額を表示しており、消費税等が課税される場合は税込価格です。 また、1万円未満は切り上げて表示しております。 |
|---|---|
| 所在地 | 物件の所在地(住居表示もしくは地番)が表示されます。なお地番等は個人情報保護の観点から一部の物件を除き記載されていません。掲載店にご確認ください。 |
| 間取り | 間取りが表示されます。 間取りの説明 ・数字:リビング、ダイニング、キッチン等を除く部屋の数 ・K:キッチン ・D:ダイニング ・L:リビング ・S/サービスルーム:納戸 ・N:納戸等 ・WIC:ウォークインクローゼット ・SIC:シューズインクローゼット ・TR:トランクルーム ※1Rはワンルームタイプです |
| 交通 | 物件の最寄り駅からの徒歩所要時間が表示されます。 複数路線、複数駅が利用可能な場合、その情報が表示されます。バスを利用する場合は、バスの所要時間(最寄駅から停留所まで)と停留所からの徒歩所要時間も合わせて表示されます。 徒歩所要時間は、1分80mで計算されています(端数は切り上げになります)。 バス所要時間は、道路状況、その他の要因により実際の所要時間と異なる場合があります。 |
| 専有面積 | 建物の主たる構造及び建物階数が表示されます。 用語の説明 ・SRC:鉄骨鉄筋コンクリート造 ・RC:鉄筋コンクリート造 ・PC:プレキャストコンクリート造 ・HPC:鉄骨プレキャストコンクリート造 建物階数は建物の総階数が表示されます。 |
| 所在階 | 物件の所在階を表示します。 |
| バルコニー面積 | バルコニーがある場合、その面積が表示されます。原則としてバルコニー面積は、専有面積には含まれません。 |
| 向き | バルコニー(若しくは主要採光面)の向きを表示します。 |
| その他面積 | ルーフバルコニー・専用庭・テラス・トランクルーム・ポーチの面線が表示されます。単位は平方メールです。 |
| 築年月 | 建物の完成年月が表示されます。 未完成の場合は、完成予定年月が表示されます。 |
| 総戸数 | 総戸数が表示されます。 |
| 土地権利 | 土地の権利が表示されます。 借地権の場合は、当該借地権の種類が表示されます。 |
| 用途地域 | 都市計画に定められている用途地域が表示されます。 |
| 借地料 | 借地権の場合、借地料が表示されます。 |
| 借地期間 | 借地権の場合、借地期間が表示されます。 |
| 管理会社 | 管理事務を委託されている管理会社名が表示されます。 |
| 管理の委託状況を表示します。 ・全部委託:管理をすべて管理会社に委託しています。 ・一部委託:管理の一部を管理会社に委託しています。 ・自主管理:管理を管理会社に委託せず管理組合によっておこなっています。 |
|
| 管理員 | ・常駐:管理員を常駐させて業務を行います。 ・日勤:管理員を通勤させて業務を行います。 ・巡回:管理員を定期的に巡回させて業務を行います。 |
| 管理費 | 共用で使用される設備等の維持費が表示されます。 |
| 修繕積立金月額 | マンションなどで毎月の管理費とは別に、計画的な修繕や修理のために積み立てる資金の額が表示されます。 |
| その他使用料 | 必要な施設費用等が表示されます。(例:インターネット接続料やCATV受信料等) |
| 駐車場 | 駐車場の有無・月額費用・空き確認日が表示されます。 用語の説明 ・有:駐車場に空が有ります。 ・無:駐車場が無いか、駐車場に空が有りません。 ※物件によっては、分譲駐車場の場合も有ります。 |
| 現況 | 物件の現況(居住中、空家、賃貸中、建築中、完成済のいずれか)が表示されます。 |
| 引渡 | 物件の引渡希望日が表示されます。 「即時」と記載されている物件のお引渡しは、売買代金全額のお支払後となります。 |
| 取引態様 | 物件に対する取引形態が表示されます。 ・仲介:不動産の売買・貸借を不動産業者に依頼する時に結ぶ契約の一つです。 ・売主:広告主である不動産業者自らが土地(建物)を仕入れ、自らが販売します。 ・代理:不動産の売買・貸借を不動産業者に依頼する時に結ぶ契約の一つです。売主に代わって契約行為をすることができます。 ・販売代理:売主の委任を受け、売主に代わって不動産の販売代行を行います。 |
| 国土法の届出 | 国土利用計画法に基づく届出の要否が表示されます。 |
| 備考 | その他の条件、法律上の制限、特記事項や現況、設備の状況など表示されます。 |
| 価格 | 物件の代金総額を表示しており、消費税等が課税される場合は税込価格です。 また、1万円未満は切り上げて表示しております。 |
|---|---|
| 所在地 | 物件の所在地(住居表示もしくは地番)が表示されます。なお地番等は個人情報保護の観点から一部の物件を除き記載されていません。掲載店にご確認ください。 |
| 間取り | 間取りが表示されます。 間取りの説明 ・数字:リビング、ダイニング、キッチン等を除く部屋の数 ・K:キッチン ・D:ダイニング ・L:リビング ・S/サービスルーム:納戸 ・N:納戸等 ・WIC:ウォークインクローゼット ・SIC:シューズインクローゼット ・TR:トランクルーム ※1Rはワンルームタイプです |
| 交通 | 物件の最寄り駅からの徒歩所要時間が表示されます。 複数路線、複数駅が利用可能な場合、その情報が表示されます。バスを利用する場合は、バスの所要時間(最寄駅から停留所まで)と停留所からの徒歩所要時間も合わせて表示されます。徒歩所要時間は、1分80mで計算されています(端数は切り上げになります)。 バス所要時間は、道路状況、その他の要因により実際の所要時間と異なる場合があります。 |
| 土地面積 | 私道を含めない敷地の面積(正味面積)が表示されます。 単位は平方メートル、および坪です。 |
| 建物面積 | 建物の総床面積・各階の床面積が表示されます。 単位は平方メートル、および坪です。 |
| 構造 | 建物の主たる構造及び建物階数が表示されます。 用語の説明 SRC:鉄骨鉄筋コンクリート造 RC:鉄筋コンクリート造 PC:プレキャストコンクリート造 HPC:鉄骨プレキャストコンクリート造 建物階数は建物の総階数が表示されます。 |
| 築年月 | 建物の完成年月が表示されます。 未完成の場合は、完成予定年月が表示されます。 |
| 駐車場 | 駐車場の有無等が表示されます。 用語の説明 有:本物件内に駐車場が有ります。 無:本物件内に駐車場が有りません。 |
| 土地権利 | 土地の権利が表示されます。借地権の場合は、当該借地権の種類が表示されます。 |
| 地目 | 登記簿に記載されている土地の用途上の分類が表示されます。現況と異なる場合がありますので、詳しくは掲載店へお問い合わせ下さい。 |
| 借地料 | 借地権の場合、借地料が表示されます。 |
| 借地期間 | 借地権の場合、借地期間が表示されます。 |
| 私道負担 | 不動産の取引において、売買等の対象となる土地の一部に私道が含まれている場合に、この私道敷地部分を所有することであり、単位は平方メートル、および坪です。 |
| セットバック | 都市計画区域内で建築物を建てる場合、建築基準法上の制限に基づき、道路の幅員を確保するために敷地の一部を道路部分として負担する場合の当該負担部分のことです。 |
| 都市計画 | 物件が所在する都市計画の種類が表示されます。都市計画には市街化区域、市街化調整区域などがあります。 |
| 用途地域 | 都市計画に定められている用途地域が表示されます。 |
| 建ぺい率 | 土地面積に対する建築面積の割合で、その地域に指定されている上限が表示されます。尚、2以上の用途地域にかかる場合や前面道路の幅員による限度等、物件ごとの具体的な数値が表示される場合がありますが詳しくは、掲載店へお問い合わせください。 |
| 容積率 | 土地面積に対する建物延べ床面積の割合で、その地域に指定されている上限が表示されます。なお、2以上の用途地域にかかる場合や前面道路の幅員による限度等、物件ごとの具体的な数値が表示される場合がありますが詳しくは、掲載店へお問い合わせください。 |
| 接道状況 | 土地に接する道路の方位・幅員・種別が表示されます。 |
| 設備 | 上水道、下水道(汚水)、ガスの設備状況を表示されます。 |
| 現況 | 物件の現況(居住中、空家、賃貸中、建築中、完成済のいずれか)が表示されます。 |
| 引渡 | 物件の引渡希望日が表示されます。「即時」と記載されている物件のお引渡しは、売買代金全額のお支払後となります。 |
| 取引態様 | 物件に対する取引形態が表示されます。 仲介:不動産の売買・貸借を不動産業者に依頼する時に結ぶ契約の一つです。 売主:広告主である不動産業者自らが土地(建物)を仕入れ、自らが販売します。 代理:不動産の売買・貸借を不動産業者に依頼する時に結ぶ契約の一つです。売主に代わって契約行為をすることができます。 販売代理:売主の委任を受け、売主に代わって不動産の販売代行を行います。 |
| 国土法の届出 | 国土利用計画法に基づく届出の要否が表示されます。 |
| 備考 | その他の条件、法律上の制限、特記事項や現況、設備の状況など表示されます。 |
| 価格 | 物件の代金総額を表示しております。 また、1万円未満は切り上げて表示しております。 |
|---|---|
| 所在地 | 物件の所在地(住居表示もしくは地番)が表示されます。なお地番等は個人情報保護の観点から一部の物件を除き記載されていません。掲載店にご確認ください。 |
| 交通 | 物件の最寄り駅からの徒歩所要時間が表示されます。 複数路線、複数駅が利用可能な場合、その情報が表示されます。バスを利用する場合は、バスの所要時間(最寄駅から停留所まで)と停留所からの徒歩所要時間も合わせて表示されます。徒歩所要時間は、1分80mで計算されています(端数は切り上げになります)。 バス所要時間は、道路状況、その他の要因により実際の所要時間と異なる場合があります。 |
| 土地面積 | 私道を含めない敷地の面積(正味面積)が表示されます。 単位は平方メートル、および坪です。 同時に公簿面積または実測面積が表示されます。 公簿面積とは登記簿面積のことです。 |
| 土地権利 | 土地の権利が表示されます。 借地権の場合は、当該借地権の種類が表示されます。 |
| 地目 | 登記簿に記載されている土地の用途上の分類が表示されます。現況と異なる場合がありますので、詳しくは掲載店へお問い合わせ下さい。 |
| 借地料 | 借地権の場合、借地料が表示されます。 |
| 借地期間 | 借地権の場合、借地期間が表示されます。 |
| 私道負担 | 不動産の取引において、売買等の対象となる土地の一部に私道が含まれている場合に、この私道敷地部分を所有することで、単位は平方メートル、および坪です。 |
| セットバック | 都市計画区域内で建築物を建てる場合、建築基準法上の制限に基づき、道路の幅員を確保するために敷地の一部を道路部分として負担する場合の当該負担部分のことです。 |
| 都市計画 | 物件が所在する都市計画の種類が表示されます。都市計画には市街化区域、市街化調整区域などがあります。 |
| 用途地域 | 都市計画に定められている用途地域が表示されます。 |
| 建ぺい率 | 土地面積に対する建築面積の割合で、その地域に指定されている上限が表示されます。尚、2以上の用途地域にかかる場合や前面道路の幅員による限度等、物件ごとの具体的な数値が表示される場合がありますが詳しくは、掲載店へお問い合わせください。 |
| 容積率 | 土地面積に対する建物延べ床面積の割合で、その地域に指定されている上限が表示されます。なお、2以上の用途地域にかかる場合や前面道路の幅員による限度等、物件ごとの具体的な数値が表示される場合がありますが詳しくは、掲載店へお問い合わせください。 |
| 接道状況 | 土地に接する道路の方位・幅員・種別が表示されます。 |
| 設備 | 上水道、下水道(汚水)、ガスの設備状況を表示されます。 |
| 現況 | 土地の現況(更地、古家有、造成工事中のいずれか)が表示されます。 |
| 引渡 | 物件の引渡希望日が表示されます。 「即時」と記載されている物件のお引渡しは、売買代金全額のお支払後となります。 |
| 取引態様 | 物件に対する取引形態が表示されます。 ・仲介:不動産の売買・貸借を不動産業者に依頼する時に結ぶ契約の一つです。 ・売主:広告主である不動産業者自らが土地(建物)を仕入れ、自らが販売します。 ・代理:不動産の売買・貸借を不動産業者に依頼する時に結ぶ契約の一つです。売主に代わって契約行為をすることができます。 ・販売代理:売主の委任を受け、売主に代わって不動産の販売代行を行います。 |
| 国土法の届出 | 国土利用計画法に基づく届出の要否が表示されます。 |
| 備考 | その他の条件、法律上の制限、特記事項や現況、設備の状況など表示されます。 建築条件付土地についての補足説明 この土地は、土地売買契約後3ヶ月以内に売主(またはその代理人)と建築請負契約を結んでいただくことを停止条件として販売いたします。この期間内に建築しないことが確定した時は、土地売買契約は白紙となり、受領した金銭は全額お返しいたします。 市街化調整区域についての補足説明 市街化調整区域とは、都市計画区域のうち市街化を抑制すべき区域のことです。市街化調整区域では原則として、用途地域を定めず、開発行為などが制限され、宅地の造成及び建物の建築はできません。 |
| 価格 |
6億4,800万円 |
||
|---|---|---|---|
| 物件番号 |
RF470205 |
||
| 所在地 |
東京都新宿区内藤町 |
||
| 交通 |
東京メトロ丸ノ内線「四谷三丁目」駅 徒歩7分 |
||
| 間取り |
3LDK+WIC+SIC+S |
||
| 専有面積
|
112.14m2(33.92坪)(壁芯) |
||
| バルコニー面積 |
10.5m2 |
向き |
西 |
| その他面積 |
― |
||
| 構造
|
RC造10階地下1階建て |
所在階 |
10階 |
| 築年月 |
2016年3月 |
総戸数 |
63戸 |
| 土地権利
|
所有権 |
用途地域
|
第一種住居地域 |
| 管理会社 |
株式会社阪急阪神ハウジングサポート |
||
| 管理形態
|
全部委託 |
管理員
|
日勤 |
| 管理費
|
29,490円 / 月 |
修繕積立金
|
14,580円 / 月 |
| その他使用料 |
緊急地震速報利用料 105円 / 月 |
||
| 駐車場 |
空なし |
||
| 現況 |
空家 |
引渡 |
相談 |
| 取引態様
|
仲介 |
国土法届出
|
不要 |
| 備考 |
●敷地面積 / 1447.8m2●分譲時会社 / 阪急不動産株式会社●施工会社 / 株式会社淺沼組●設計会社 / 株式会社日建ハウジングシステム |
||
| 更新日 |
2026年3月24日 |
次回更新予定日 |
2026年4月7日 |
野村不動産ソリューションズ株式会社 国土交通大臣免許(6)第6101号
本掲載情報と現況に差異がある場合、現況を優先します。掲載物件は売却済あるいは売出中止となる場合もあります。
掲載写真やパース(絵)、または間取図に描かれている家具や車などは、価格に含まれておりません。予めご了承ください。
周辺施設や周辺環境の写真は、過去に撮影したものをそのまま利用している場合があり、名称・外観・背景等、実際のものとは異なる場合がございます。
仲介物件には所定の仲介手数料(消費税等相当額を含みます)が必要です。
黒木 周(くろき しゅう)
===この物件のお問合せは、
【黒木 周(くろき しゅう)】
までお問い合わせください===
【土曜日・日曜日】のご見学予約も承ります。
(1)お電話で・・・
●会社(無料通話):0120-975-769
(2)メールで・・・
●担当者直通メール:s-kuroki@nomura-re.co.jp
また、本物件についてのご質問やご購入の
ご相談等ございましたら、
お気軽にお問い合わせください。
ご連絡を心よりお待ちしております。